事例紹介
リフォーム事例を探す
リフォーム場所から検索
キッチン
ダイニング
リビング・居室
寝室
浴室
洗面化粧室
トイレ
玄関まわり
門まわり
屋根・外壁
ベランダ・バルコニー
ガーデンスペース
カースペース
住まいのこだわり
バリアフリー
耐震補強
オール電化
省エネ
自然素材
収納
デザインリフォーム
中古リフォーム
古民家再生
家族の変化
趣味を楽しむ
ペットと暮らす
お客さまの声
3Dシミュレーション
事例紹介
LIXILリフォームショップを探す
LIXILリフォームショップについて
LIXILリフォームショップについて
サービス向上・品質改善の取り組み
お客さま満足度アンケート
ここちいい暮らしをつくる、価値・性能向上リノベーション
リフォームコンシェルジュ®
ライフスタイルコンパス
リフォームアクセル
中古物件探しから性能向上リフォームをワンストップ
LIXILリフォームショップのコンセプト
リフォームお役立ち情報
おすすめ情報
加盟店募集
住宅リフォーム・リノベーション専門のLIXILリフォームショップ
LIXILリフォームショップを探す
福岡県
LIXILリフォームショップ ライファひびきの
施工事例
M様邸 浴室・洗面改修工事
LIXILリフォームショップ
ライファひびきの
お見積・ご相談・お問い合わせはこちら
093-693-6101
無料でご相談
LIXILリフォームショップ
ライファひびきの
お見積・ご相談・お問い合わせはこちら
093-693-6101
無料でご相談
店舗ホーム
スタッフ紹介
施工事例
イベント&
キャンペーン
ごあいさつ
会社案内
M様邸 浴室・洗面改修工事
福岡県 M様邸 2017年3月10日
工期
10日
費用(税込)
100〜300万円
建物種別
戸建て
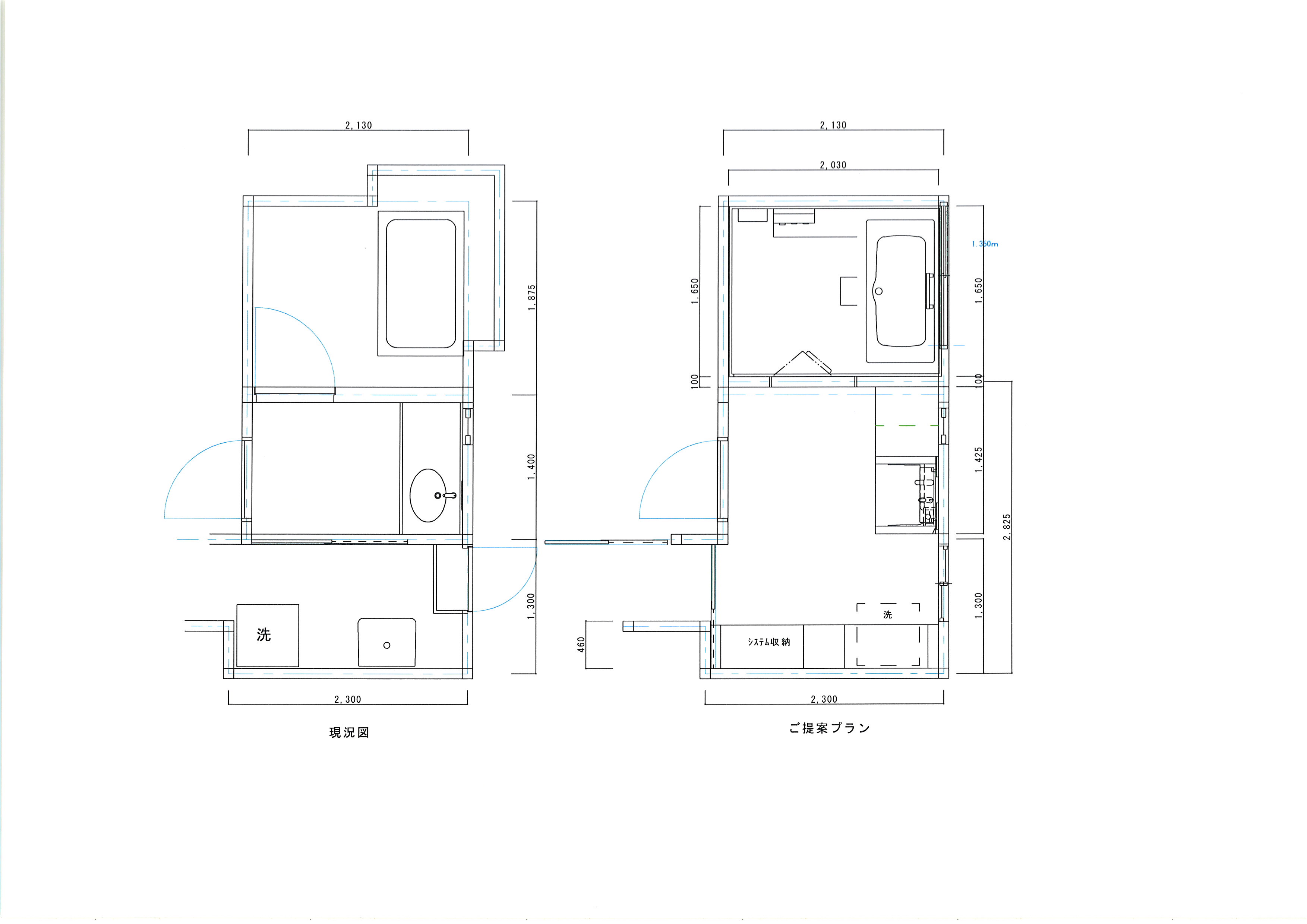
ビフォー・アフター
その他、リフォーム空間
洗面脱衣所 施工後
洗面脱衣室と洗濯室の仕切りを無くし、広々空間に。また、勝手口からも光が入るようになり、明るい印象になりました。
洗面脱衣室 施工前
M様邸 施工前後図面
洗面脱衣所 施工後
収納を増やして、物があふれる事がなくなり、また洗面化粧台と同色の収納にした事で、スッキリとした空間になりました。
ライファひびきのの施工事例一覧へ
お見積・ご相談・お問い合わせはこちら
お見積・ご相談・お問い合わせはこちら
093-693-6101
無料でご相談