フルリノベーション

LIXILのここちリノベ フルリノベーション

まず知ってほしい、
フルリノベのこと。

フルリノベってどんなリノベ?

フルリノベーションとは、家全体を大規模に改修する工事のことを指します。間取り変更や配管移動、二世帯住宅化など大規模な改修が可能です。

※加盟店により、リノベーション対応可能範囲が異なります。
詳しくは工事を依頼する加盟店にご確認ください。

フルリノベーションのメリット

すでに家を持っている方

実家など、長年住み継いだ思い出のある住まいを壊さずに活かすことができるのがリノベーションの魅力。断熱性、耐震性などの性能を向上させることで、次の世代も安心して暮らすことが可能です。

これから家を持つ方

お子さまの通園・通学のしやすさを考えて、立地を希望条件の上位に考えている方は、中古物件を購入してのリノベもお勧めです。

LIXILのここちリノベ
フルリノベはおまかせ!
Feature

LIXILリフォームショップは、高い専門知識を持ったスタッフが5つの価値バリュー提案を通じて、新築時よりもっとここちいい暮らしを実現します。

5つの価値(バリュー)

LIXILのここちリノベ
フルリノベモデルプラン
Model Plan

MODEL 01.
ふたつの夢がひろがる家

ご主人はオーディオルームで音楽をおもいきり楽しみ、奥様は念願のお料理教室ができる空間にリノベーション。今まで頑張ってきたご褒美にふたつの夢を叶え、これからを楽しむ間取りに。

ご近所を気にせず音楽に没入できる場所

和室だった場所は防音対策をしてオーディオルームに。窓に内窓を設置した他、部屋の入口の扉も二重にしたり、隣室との間に収納を設置して防音性能を向上。音楽を聴いたり楽器を演奏したり、静かな空間で自分だけの空間を楽しめる場所です。

自由に行き来できる開放的な大空間

耐震性能を向上させることにより、料理教室に対応したキッチンスタジオ、大勢で食事のできるダイニング、落ち着きのあるリビングをひと続きに。生徒さんが自由に行き来できる広い空間を実現しました。

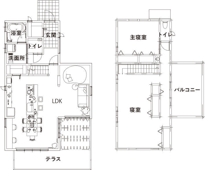
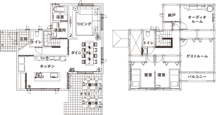
Before
After
  • ●1F
    • トイレは生徒さんが使うことを想定して玄関近くに移動させ、パウダールームに
    • 晴れた日は外で食事会ができるテラスを設置
  • ●2F
    • オーディオルームの入口は防音対策として建具を二重に
    • ︎隣室のゲストルームとの間には収納を設置し防音性能を向上

MODEL 02.
自宅の庭でアウトドア体験の家

暮らし・遊び・教育など、子育てを中心に考えたリノベーション。ボルダリングウォールやアウトドアリビングでBBQ、バルコニーで星空観察、また、勉強もキッチン脇のカウンターで。毎日が子どもと一緒に楽しめる空間に。

大開口窓で自然の光を取りいれる

リノベーションを経て耐震性が向上した家だからこそ実現できる大開口窓。陽の光をたくさん取り込み、外の風景も楽しめるから、家の中でも自然を楽しむことができます。

屋内と屋外が一体となった解放空間

もともと庭であったスペースにウッドデッキを設置し、テラスに。LDKと同じ高さにすることで屋外との一体感を創出。テラスではBBQやプールを楽しめ、ハンモックを取り付ければ日常生活の中で気軽にリレッシュができる場所に。

Before
After
  • ●1F
    • ︎家族みんなで料理や食事をしやすいアイランドキッチン
    • 玄関にはシューズクロークを設け、すっきりと整理された印象に
    • 壁面をボルダリングウォールに、室内でも思いきり遊べるリビングに
    • LDKから段差なく続くテラスで遊び場を拡張
  • ●2F
    • バルコニーには天体望遠鏡を設置して夜空を楽しむ勉強コーナーに

MODEL 03.
ぬくもりを住み継ぐ家

築60年の実家を受け継ぎ、ご夫婦が安心して暮らせるようにリノベーション。父との思い出やぬくもりは残して、快適に過ごせる性能と動線を改善。
子ども夫婦と孫が遊びに来た時にはおもいきり楽しめる空間に。

窓辺のリビングで変わらない景色を楽しむ

大きな窓のそばにある掘りごたつは、景色とともに家族団らんを楽しむ場所に。
断熱性能が高いから、広い空間でも暖かくて過ごしやすくなります。

自由に行き来できる開放的な大空間

これまで2階にあった寝室を1階に移動させ、1階だけで完結する生活動線に。階段を上り下りする必要がないので、もしものことがあっても安心です。ベッドサイドに間接照明を設置することで、夜でもリラックスできる空間に。

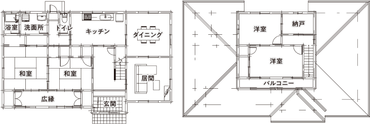
Before
After
  • ●1F
    • ︎家族やゲストと会話しながら料理ができるカウンターキッチン
    • 和室にあった思い出の柱を残し、
       家族団らんを楽しむリビングに
    • 寝室から大型ウォークインクローゼットを経由して
      水まわりへの近道動線を確保

MODEL 04.
新しい日常を愉しむ家

家に帰ったら手洗いがすぐできる手洗いボウルを玄関に設け、裏動線で洗面室にも行ける。在宅ワークが基本になった夫婦それぞれが気兼ねなく仕事ができる空間も。新しい日常に対応した「暮らす」と「働く」を共存させた間取りに。

家の中でも仕事に集中できる場所を

家の中にリモートワーク専用スペースを設け、家族がいても仕事に集中できる場所を。プライベートも仕事の時間も自宅で過ごすことが多くなっても、メリハリのある暮らしを実現します。

家に帰ってすぐに手を洗える動線

玄関に入ってそのまま手洗い場に向かえる動線を用意。家のものに触れたり、家族に出会う前に手を洗うことで、衛生面に配慮した環境をつくります。

Before
After
  • ●1F
    • ホールには手洗いボウルを設置し、玄関から水まわりへのクリーン動線を確保
    • 夫婦それぞれのテレワークスペースを別の階につくり、オンライン会議など仕事に集中できる環境に
  • ●2F
    • 多目的スペースを設け、子どもが学習したり遊んだりさまざまな用途に活用
資料請求 ショップを探す