こんにちは!
LIXILリフォームショップCUBEリノベーション足立店の仲田です。
今回は水道管のお話し・・・、ではなくて
カーポート工事のお話しです。
とあるお客様からカーポート工事のお見積りのご依頼がありました。
現地にお伺いさせていただき、まずどの様な種類・サイズのカーポートをご希望されているかの
ヒアリングをさせていただきました。
次に設置する場所の確認です。
そうするとなんと!
設置しようと考えている場所に水道メーターのボックスが!!
しかもカーポートの柱が立つ方向に水道管が埋設されている可能性が・・・。
柱が立つ場所に水道管があったとしても、水道管の切り回し(※柱を避ける為の工事)をすれば
大丈夫なんですが、余計に費用がかかってしまいます。
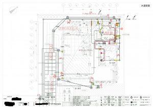
そこでお客様に、建築したビルダー様に水道管の図面を入手して欲しいとお願いしました。
あらかじめ把握しておけば、水道管を切ってしまわない様に注意しながら工事が出来ますし、
余計な費用が掛かる、掛からないという事も分かりますし。
ご依頼をさせていただき・・・、3日後位に、

ありました、水道管の埋設図面が。新築されたばかりの住宅でしたのでしっかりと図書として存在しておりました。
その図面を見ましたら、柱が立つ方向には水道管は埋設されておりませんでした。
このビルダー様も将来的にカーポートが設置されるだろうと想定して水道管も考えていたんです。
で、設置されたカーポートがこちら!

LIXILのカーポートSC/縦2連棟で、幅が3m・奥行が10mのカーポートです。
屋根材はポリカーボネートではなく、アルミ材の屋根材でとても丈夫なんです。
これだけのサイズですが、工事期間はたったの2日!職人さんの工事の手際がいいんですね。
築年数の経っている住宅ですと、この様な資料はほぼ存在しておらず
開けてみないとわからないとかって結構あるんですが、今回は新築の住宅でしたので
安心して工事をする事が出来ました!
それでは、水道管のお話し
ではなくてカーポート工事のお話しでした!
外構工事も手掛ける、
LIXILリフォームショップCUBEリノベーション足立店へお気軽にご相談ください!
一覧へ戻る