LIXILリフォームショップ大八木建設 安曇野店

お見積・ご相談・お問い合わせはこちら 0120-83-5210

LIXILリフォームショップ大八木建設 安曇野店

お見積・ご相談・お問い合わせはこちら 0120-83-5210

キッチンリフォーム中のちょっとしたアイデア(^^)/

皆さんこんにちわ。寒い日が続きますがいかがお過ごしでしょうか?

コロナ禍の中 お家で過ごす時間が増え、家の中の片づけや整理を始めた方も多いのではと思います。

弊社も昨年に比べると ちょっとした修繕・プチリフォームの依頼を頂く事が増えておりますので、

お家の中にある「ちょっと気になる」場所に気づかれた方が多いんだろうなあと思います。

そんな中、先日行いましたリフォームの例をご紹介します。

ちょっとしたアイデアでぐっと使い勝手が良くなった施工事例です。

大町市の現場。

タイトルなし.png

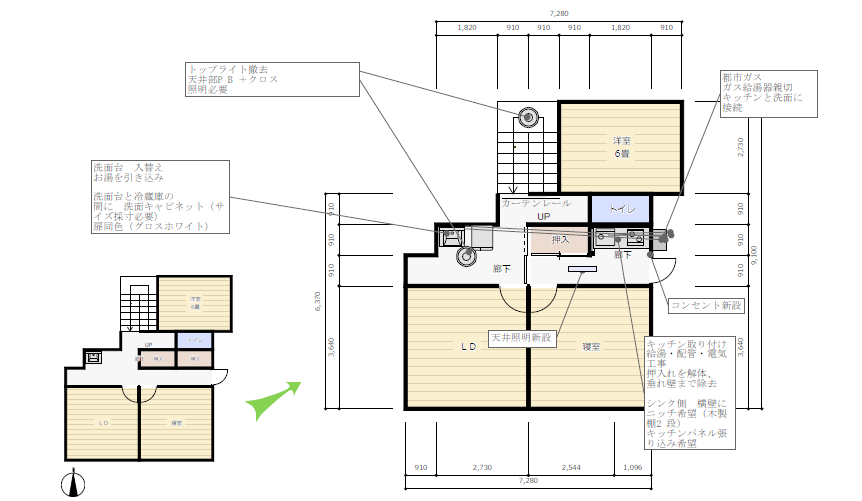
こちらは修繕の他、2階にミニキッチンを付けたい!とのご要望で進めておりました。

通常なら、押入れにミニキッチンを入れて終了、、、という工事なのですが、

せっかく工事するならば、長く使えるものにしたい と話し合いを重ねさせて頂きました。

そして、決まりましたキッチンのプランはこちら↓

kittinn.png

押入れだった場所のサイズをキチンと測り、収納にできるスペースは余さず収納に。

更に使い勝手や収納力を考え、キッチンのシンク上に ステンレスの水切り棚

左側の壁に、ニッチを造作致しました。

施工現場写真.jpg

ステンレスが水に強いのはもちろんですが、ニッチの棚も水に強い商品を選定。

高さや位置も、設計者同士で話し合い 施工しました。

DSC_0027.JPG

ちょっとしたアイデアで、ぐっと使い勝手が良くなったと思います。

ミニキッチンだから・・といわず、どんどん使って欲しいなと思います^^

ご依頼いただきました、K様、ありがとうございました。

一覧へ戻る

お見積・ご相談・お問い合わせはこちら

お見積・ご相談・お問い合わせはこちら

0120-83-5210