東京都 R店舗 2024年8月10日
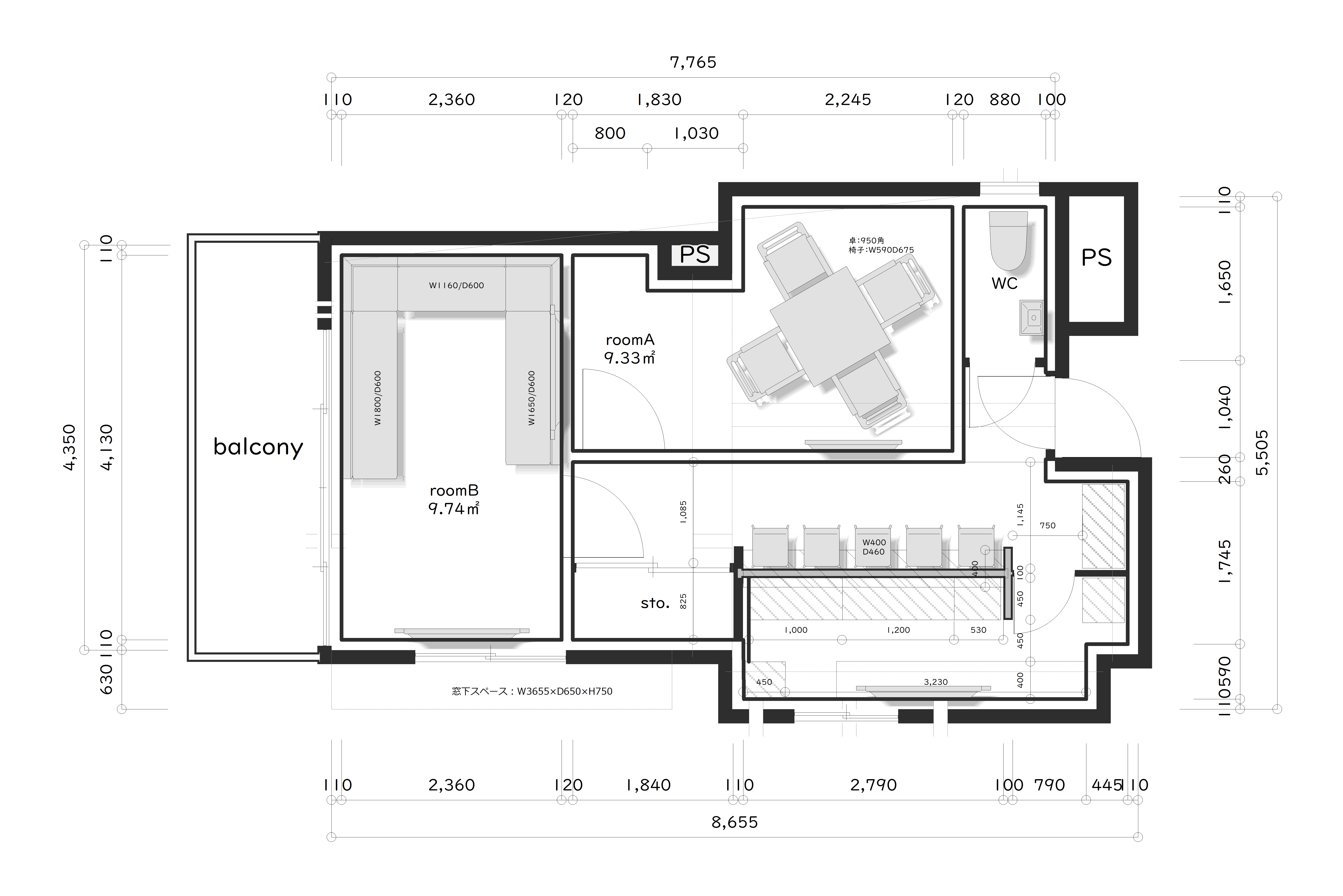
テナントビルの1室(スケルトン状態)を既に借りられている状況で、お声掛け頂きました店舗リノベーションの実例です。決して広くない空間に、個室2部屋とバーエリアは必須のご要望。また、カラオケも出来る飲食店である為、様々な設備機器が必要であることから、レイアウトプランの打合せを何度もさせて頂きました。内装は、無機質!にこだわれておりましたので、天井・壁・ドアはすべて同色のマッドグレーの塗装に。消防や保健所とも事前打合せをし、検査も一発パスし、完成した【シンプル×無機質】へ変身した空間です。
| リフォーム部位 | 厨房、トイレ、収納、個室、照明、設備 |
|---|---|
| 面積 | 39.69㎡ |
| 築年数 | 築50年 |
| 工期 | 2.5カ月 |
| 費用(税込) | 1000万円〜 |
| 建物種別 | マンション |
| 家族構成 | 店舗 |



担当者コメント
LIXILリフォームショップハウセット 押上店 マネージャー 鈴木 直子
着工までは数センチ単位でのレイアウト打合せを何度もさせて頂きました。着工してからは、ビル自体の雨漏りなどなど…トラブルも多々ありましたが、お施主様にもご満足頂ける仕上がりになりました!!!今まではの店舗リフォームでは、厨房内部は、お施主様と専門業者様とでのやり取りでしたが、今回はこちらも携わる事になり、私自身とても勉強になりました。今後のご繁盛をお祈りしております(^▽^)/