東京都 新宿区 O様邸 2024年4月30日
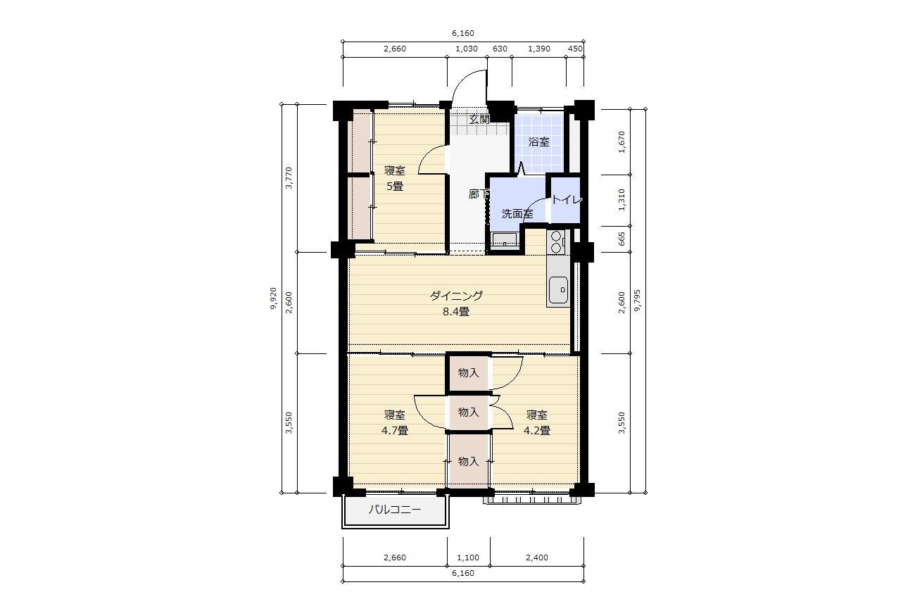
築50年の中古マンションご購入され、リノベーションのご相談をいただきました。何度かヒアリングをさせて頂き、O様の好みや生活スタイルを考慮し、プランニング。仕切りだらけの空間を開放的にし、プライベート空間はコンパクトに。収納もたっぷり設けています。
LIXILリフォームショップハウセット 押上店 店長 鈴木 直子
O様は好みや新たな空間での生活イメージもはっきりされていました。 お互いに相違が無い様、変更が出ることにパースを提出し、お打合せをさせていただきました。 その甲斐もあり、O様のイメージ通りの空間が完成しました。 マンション自体はとても管理が行き届いていましたが、やはり築50年・・・ 外壁に面している壁は結露からカビが発生していました。 デザイン性のみならず、健康的に住んで頂きたい!ご予算をオーバーしてしまいましたが、 結露防止工事をご提案し、工事させていただきました。 また、予算を削れる所は、削る! 今回リビングに棚をご希望いただいておりました。 無印の商品を使用し、背面に壁を取り付ける事で、コストダウンに。 諦めない!築50年マンションが生まれ変わりました。
お見積・ご相談・お問い合わせはこちら
0120-900-743
担当者コメント
LIXILリフォームショップハウセット 押上店 店長 鈴木 直子
O様は好みや新たな空間での生活イメージもはっきりされていました。 お互いに相違が無い様、変更が出ることにパースを提出し、お打合せをさせていただきました。 その甲斐もあり、O様のイメージ通りの空間が完成しました。 マンション自体はとても管理が行き届いていましたが、やはり築50年・・・ 外壁に面している壁は結露からカビが発生していました。 デザイン性のみならず、健康的に住んで頂きたい!ご予算をオーバーしてしまいましたが、 結露防止工事をご提案し、工事させていただきました。 また、予算を削れる所は、削る! 今回リビングに棚をご希望いただいておりました。 無印の商品を使用し、背面に壁を取り付ける事で、コストダウンに。 諦めない!築50年マンションが生まれ変わりました。