こんにちは、【リフォームショップ ハウセット】です。
来月より、マンションのフルリノベーション工事が始まります。
今回のマンションは、高層階より眺望&開放感が良い点をフルに活かし、
お施主様のご要望を叶えたプランとなります。
解体後には、現場見学会(要予約)も行いますので、
実際にマンションってどうなっているんだろう?
所有やこれから購入予定のマンションリノベを検討されている方は是非ご参加ください。
後日、改め見学会についてはホームページやSNS等でお知らせ致します。
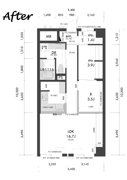
【現状図とプラン図】

【現状写真】
現在、マンションの大規模修繕中の為、窓からの眺望が眺められないのが残念・・・
しかし、日当たりの素晴らしさは伝わりますよね。

【現場見学会(後日お知らせ予定)】
現状が解体された状態を見れるチャンスはなかなかありませんので、
是非、このチャンスをお見逃しなく!