今回は、工事前と解体後のBefore&After写真の公開です。
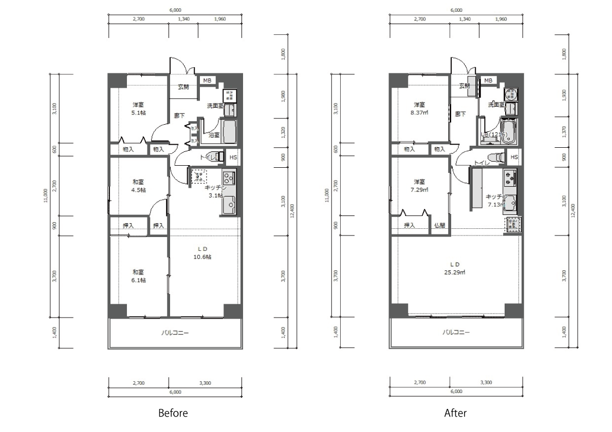
築年数41年のマンションを、フルリノベーション。
マンション1階のご自宅という事で、ただリノベーションをするのではなく、
湿気のこもりやすい1Fをより快適な住まいにするための断熱や結露防止を制御する
ご提案をさせて頂きました。
まずは、40年の壁を解体した状況です。間仕切壁が無くなるだけで無駄な柱が見えてきました。
少しでも空間を広くできるよう、工事を進めております。

リビングと和室の解体前と後↓(上:Before 下:After)
キッチンの解体前と後↓(左:Before 右:After)
洗面室・ユニットバスの解体前と後↓(左:Before 右:After)
いかがでしょうか?
「現場見学会」、「完成見学会」も予定しておりますので、改めて
ご案内させて頂きます。お楽しみに!
一覧へ戻る