こんにちは。押上店のスズキです。
先週から始まった賃貸マンションリフォーム現場のレポート第1弾!
作業中にお邪魔してきました!
今回は、工事前と解体後のBefore&After写真の公開です。
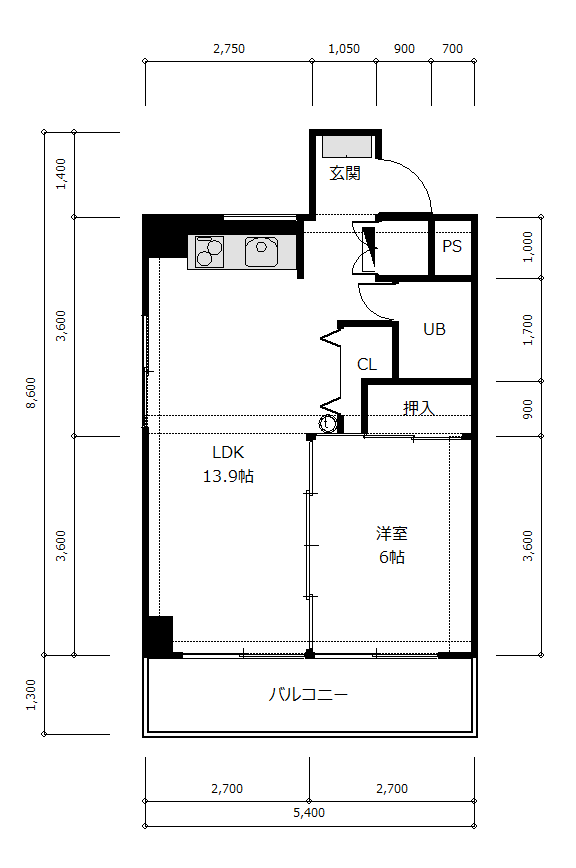
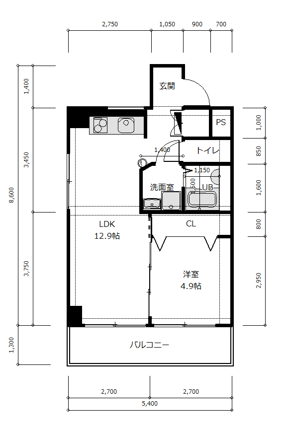
まずは、全体の間取り変更等はこんな感じです↓(左:Before 右:After)
ポイントは、賃貸物件なので、①今よりも高い賃料にする ②入居者がすぐに決まる です!
そこで、3点ユニットをユニットバス・洗面室・トイレと分けました。
また、メンテナンス面から床材は、フロアタイルを採用。

キッチンの解体前と後↓(左:Before 右:After)

3点ユニットの解体前と後↓(左:Before 右:After)

洋室の解体前と後↓(左:Before 右:After)

いかがですか?
工事中の現場は、なかなか見れませんよね?
今後、少しずつ変わってゆく現場をお伝えしていきますので、お楽しみに(^▽^)/
【現場リポート続きはこちら】
現場リポート②_賃貸マンションリフォーム/南麻布K様邸
現場リポート③_賃貸マンションリフォーム/南麻布K様邸