【今週土日】葛飾・江戸川中古住宅販売会
■日程 2024年1月13日(土)
~1月14日(日)
■時間 10:00~17:00
■住所 東京都葛飾区立石1丁目
東京都江戸川区西一之江2丁目
【今週土日】
葛飾・江戸川
中古住宅販売会
~フルリノベーション物件あり~
ついに完成した
フルリノベーション住宅
「葛飾区立石1丁目」と
セイズ施工の高性能中古住宅
「江戸川区西一之江2丁目」
の2現場で販売会を開催いたします!
当日は、
ご自宅のリノベーション相談
も可能です。
《開催日時》
1月13日(土)14日(日)
10:00~17:00
【 開催物件はこちら 】
※「江戸川区西一之江2丁目」
見学の際は予約制となりますので、
事前にご予約をお願いします。
葛飾区立石1丁目
※直接現地にご来場ください。
所在地:葛飾区立石1-23
構 造:木造2階建て
価 格:3,780万円(税込)
土地面積:39.81㎡(約12.04坪)
延床面積:45.86㎡(約13.87坪)
間取り:2LDK+バルコニー+ロフト
アクセス:京成押上線
「京成立石」駅 徒歩7分
◎ロフト付2LDK
◎内観
◎高気密・高断熱
高断熱材・硬質ウレタンフォームで建物全体を包み込み、気密施工することで、魔法瓶のように保温性に優れた高気密・高断熱の住まいを実現。外気の影響を受けにくいため、一年中快適な室内温度を保ち、冷暖房のコストも抑えます。
◎全館空調システム「CCF STYLE」
高気密・高断熱にリノベーションされているからこそ、消費電力も少なく家全体で温度差のない快適な空間を実現します。
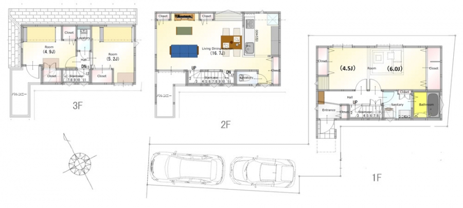
②《値下げ・2018年築》
江戸川区西一之江2丁目
※事前にご予約をお願いします。
所在地:江戸川区西一之江2-23
構 造:木造3階建て(SW工法)
価 格:4,580万円
↓
4,480万円(税込)
※価格改定
土地面積:84.63㎡(約25.60坪)
延床面積:93.22㎡(約28.20坪)
間取り:4LDK+バルコニー+2台駐車
可能なカースペース
アクセス:都営新宿線
「一之江」駅 徒歩20分
◎2台駐車可能な4LDK

◎内観

《ご予約・ご質問などは》
(フリーダイヤル)
まで、お気軽にお問い合わせください。
※スタッフが不在の場合があります。
その際は誠に恐縮ですが、
上記までお電話ください。
早急に対応させていただきます。
※駐車場はございませんので、近隣のパーキングをご利用ください。
一覧へ戻る