日程 |
2023年7月29日(土)~7月30日(日) |
|---|---|
時間 |
10:00~17:00 |
住所 |
足立区千住東1-10-10 |
足立区中川4-43-3(ナイスアーバン亀有) |
【今週土日】価格改定2現場
北千住駅・亀有駅
リノベーション住宅販売会
~リノベーション相談も承ります~
7月29日(土)30日(日)
10:00~17:00
リフォームショップセイズが手掛ける
北千住駅と亀有駅の好立地住宅が
ついに完成!
NEW YORKスタイルに フルリノベーションされた
「ナイスアーバン亀有」と
人気の北欧スタイルに フルリノベーションされた
「足立区千住東1丁目」庭付き一戸建て
2現場で販売会を開催します!
当日は、
ご自宅のリノベーション相談も可能です。
【開催物件はこちら】
リノベーション住宅販売会
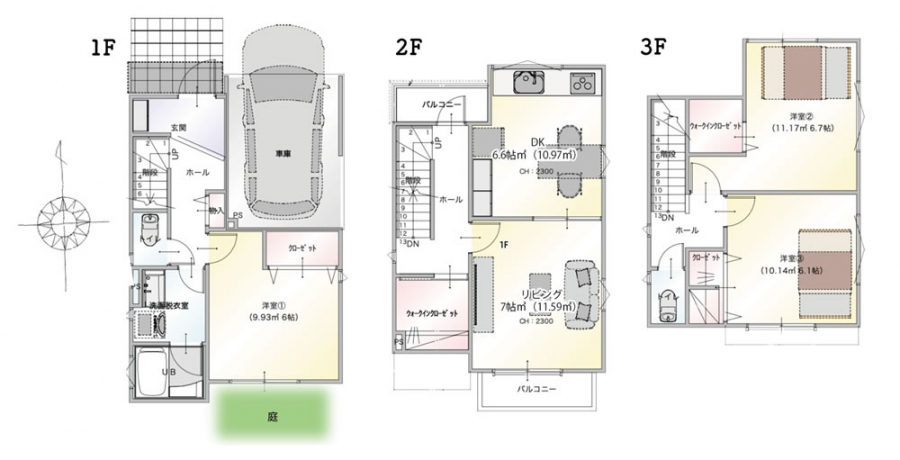
①《北千住駅8分》足立区千住東1丁目リノベーション住宅
※直接現地にご来場ください。
所在地:足立区千住東1-10-10
構 造:木造3階建て
価 格:6,080万円(税込)※価格改定!
土地面積:62.26㎡(約18.83坪)
延床面積:89.84㎡(約27.18坪)
間取り:3LDK+庭付き+カースペース+WIC+南向きバルコニー
アクセス:JR常磐線など5路線利用可能な「北千住」駅 徒歩8分、京成本線「京成関屋」駅 徒歩10分
◎全居室6帖以上の広さで収納ありの快適プラン

◎内装は人気の北欧スタイル

◎第一種換気システム「せせらぎ」
熱交換換気システムで、常にクリーンな空気を循環させ、過ごしやすい室内環境を維持しつつ、換気による内部熱のロスを抑えられ冷暖房に消費する電力を節約することができます。また、従来のダクト式換気システムのように、長いダクトを通して家全体に空気を送る必要が無いため、更に省エネになります。

②《亀有駅9分・家具付き》ナイスアーバン亀有
※直接現地にご来場ください。
所在地:足立区中川4-43-3
構 造:RC地上5階建て
価 格:3,880万円(税込)※価格改定!
専有面積:63.51㎡(約19.21坪)
間取り:2LDK+バルコニー
アクセス:JR常磐線「亀有」駅 徒歩9分
◎18帖の広々LDK


◎人気のNewYorkスタイルにリノベーションされた内装

◎亀有駅徒歩9分の充実した生活施設を利用可能。大谷田小学校徒歩1分、アリオ亀有徒歩11分、自然豊かな中川公園は徒歩2分でバスケットゴールもあり、スポーツに最適。

◎インプラスを施工し、断熱性能を向上(Low-e複層ガラスを採用)
