LIXILリフォームショップ山一建設

お見積・ご相談・お問い合わせはこちら 0120-117-486

LIXILリフォームショップ山一建設

お見積・ご相談・お問い合わせはこちら 0120-117-486

入社3か月のウッドデッキの階段作り

こんにちは:->

村井です

暑い日が続いてますねー

体調は大丈夫でしょうか(´・ω・`)

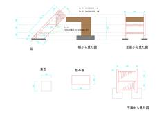
この間、ウッドデッキの階段を

自分でデザインを考えて

cadで図面を作成しました!!!!!!!!!!

今回2*10を使った階段です

上司の沼尾さんも違う階段を製作中

製作中色々問題が発生(´・ω・`)

沼尾さん流石

こうしたらえーやないかいっと

お手伝いしてもらって

完成

とっても可愛いですな~~

図面を作るのも手こずりましたが

製作も大変でした(´・ω・`)

図面の見方やチェックポイントなど

とっても勉強になる階段作りでした☆彡

 


添付PDF (669.9 KB) 一覧へ戻る

お見積・ご相談・お問い合わせはこちら

お見積・ご相談・お問い合わせはこちら

0120-117-486