LIXILリフォームショップ本橋工務店 本店

お見積・ご相談・お問い合わせはこちら 0120-495-419
LIXILリフォームショップ本橋工務店 本店
お見積・ご相談・お問い合わせはこちら 0120-495-419

第3回 浴室・洗面・便所リフォーム施工事例特集

前回に引き続き施工状況を更新します。

いよいよシステムバスの施工です。

弊社にてリフォームを計画し、ご契約する際に以下のプレゼンテーション及び図面をお渡ししています。

この書類に基づいてメーカーのショールームなどでお打合せなどをさせていただき決定していきます。

今回採用のシステムバスは弊社がお奨めするLIXILシステムバス スパージュという商品です。

LIXILスパージュ https://www.lixil.co.jp/lineup/bathroom/spage/

「お風呂を愛する国の、バスルーム」というコンセプトで誕生したシステムバススパージュは他のメーカーには無い

浴室を堪能するシステムが多くあります。是非ともお近くのショールームでお確かめ下さい。

LIXIL川越ショールーム https://www.lixil.co.jp/showroom/kanto/kawagoe/

LIXIL立川ショールーム https://www.lixil.co.jp/showroom/kanto/lixil_tachikawa/

20200116135637_00001.jpg

今回のシステムバス特長は大型の液晶テレビやアクアフィールと呼ばれる肩湯です。

全身でも、半身浴でも心からリラックスできる、ベールのような新感覚の肩湯。

https://www.lixil.co.jp/lineup/bathroom/spage/feature/aquafeel/#anchor01

スパージュ:アクアフィール [肩湯/サイレントジェット]

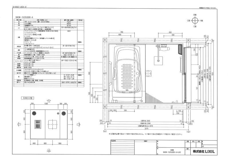
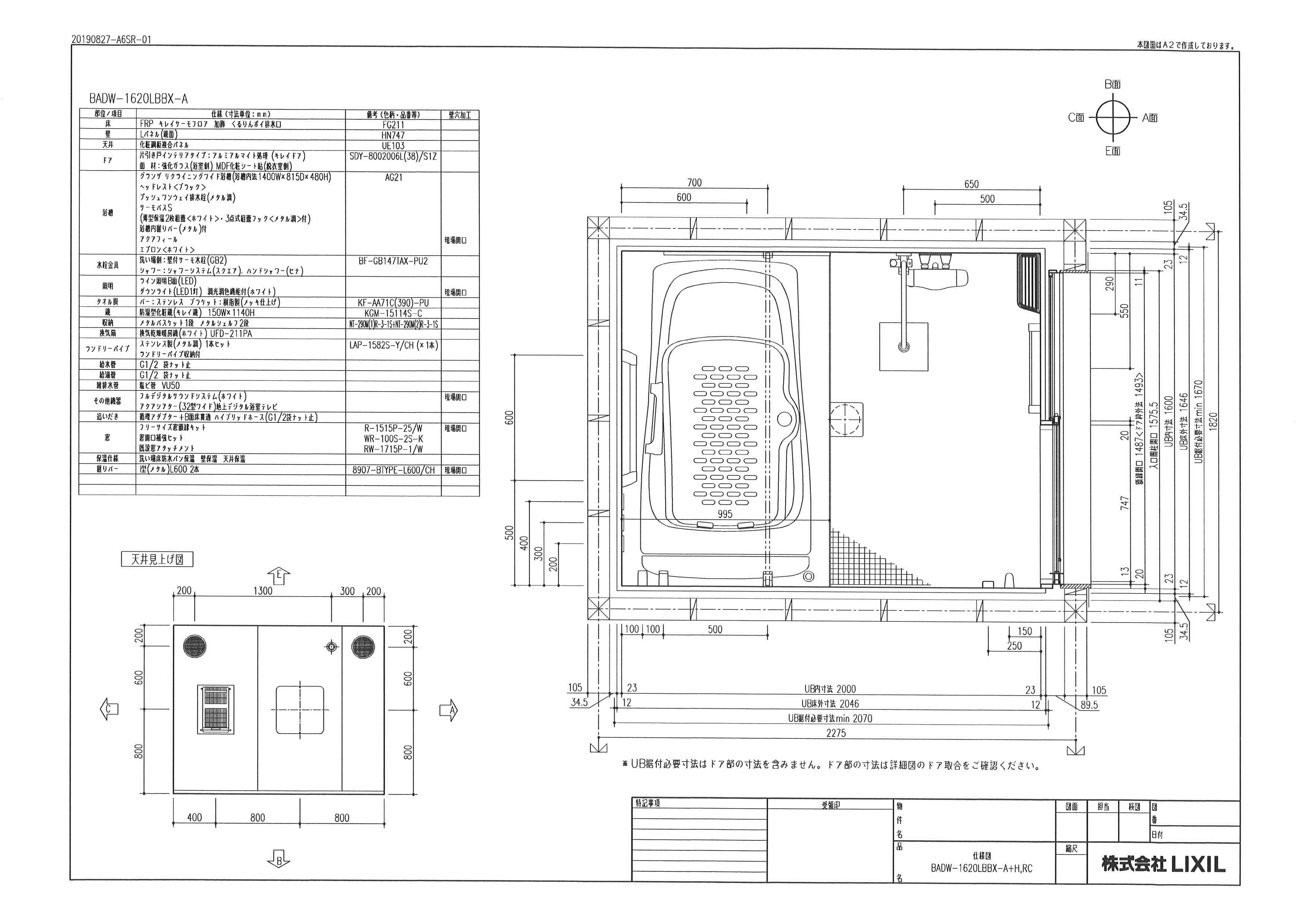
こちらがメーカー指定の図面になります。各担当業者はこちらの指示を元に施工を準備します。

本橋邸 浴室詳細図.jpg

さて組立の様子を見ていきましょう。

システムバス施工当日朝の準備です。多くのパーツが搬入されてLIXILエンジニアが整理をしています。

001.jpg

まずは床を設置して四方に金属のアングルを組みます。

002.jpg

壁パネル・天井パネルを組んでいきます。

003.jpg

次に各種器具を設置していきます。

壁の一部くり抜かれてるのはテレビが設置される箇所です。

004.jpg

こちらはシステムバスを外側から見た様子。

今回のシステムバスはフル断熱仕様ですので壁パネルには全てグラスウールが貼られています。

005.jpg

こちらはシステムバスの天井裏。天井にも断熱が貼ってあります。

換気乾燥機・テレビユニット・ジェットバスなどの機械はこちらに設置されています。

006.jpg

全ての器具設置が完了しました。

009.jpg

今回のお客様では高窓を採用しています。近隣に高い建物もありませんのでクリアガラスでのペアガラス採用です。

008.jpg

さて次回は洗面脱衣室です。お楽しみに・・・

一覧へ戻る

お見積・ご相談・お問い合わせはこちら

お見積・ご相談・お問い合わせはこちら

0120-495-419