LIXILリフォームショップ本橋工務店 本店

お見積・ご相談・お問い合わせはこちら 0120-495-419
LIXILリフォームショップ本橋工務店 本店
お見積・ご相談・お問い合わせはこちら 0120-495-419

第1回 浴室・洗面・便所リフォーム施工事例特集

皆様、明けましておめでとうございます。本年も宜しくお願い申し上げます。

さて、今回は「リフォーム施工事例」をシリーズ特集してみたいと思います。

工事箇所は浴室と洗面室です。こちらのお宅は築年数も40年を超え、水廻りが大変老朽化しており洗面室も広いのですがどうも整理整頓がしにくいとの状況。

まずは既存の状況を踏まえて計画をします。

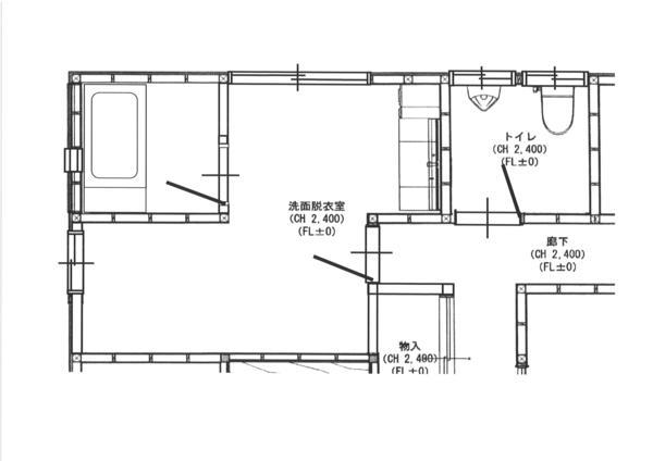
○既存図面                               

既存.jpg

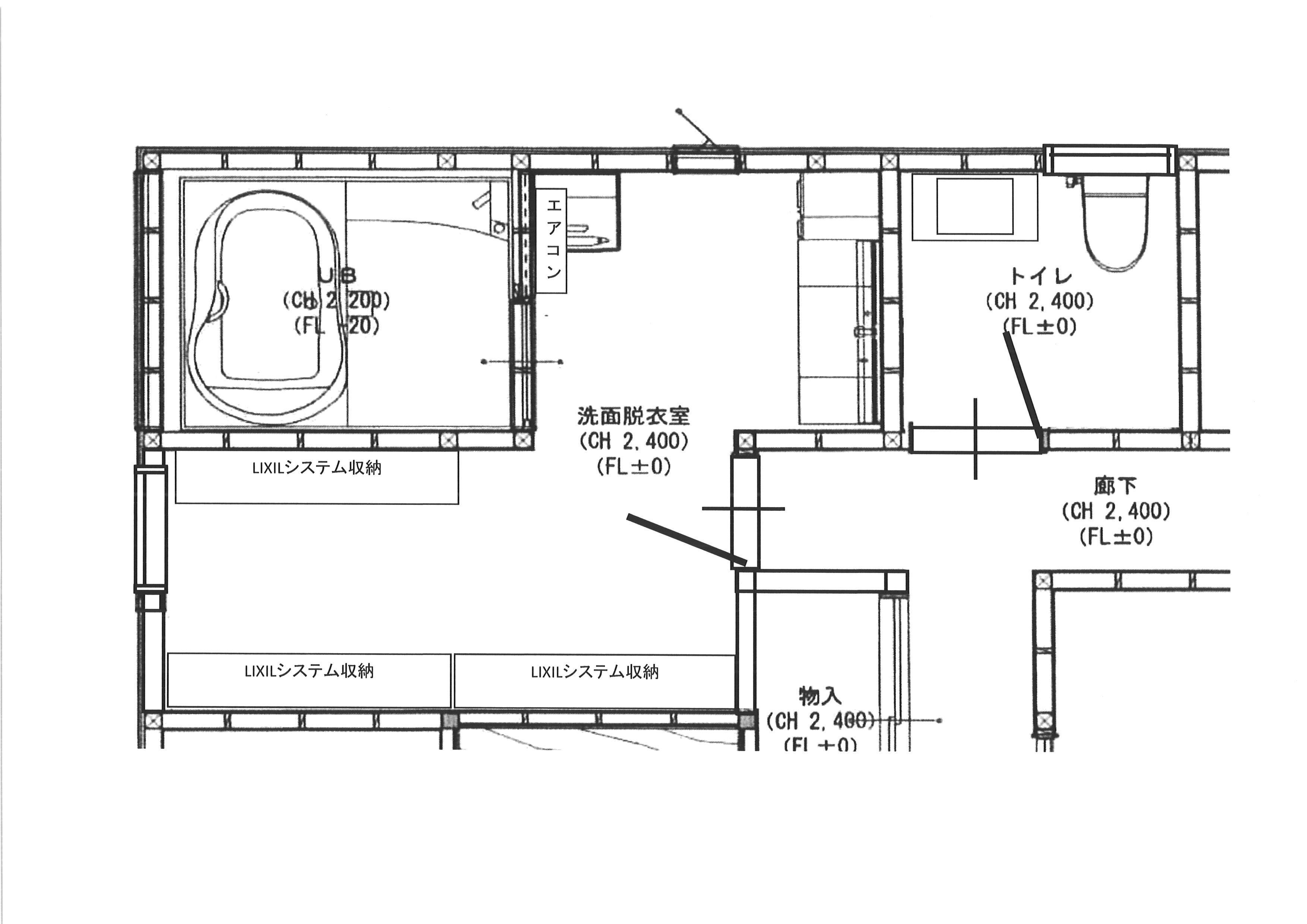
〇計画図

計画.jpg

1坪の浴室を1.25坪に大型化。洗面室は脱衣場や衣類収納を兼ねていますのでご家族それぞれが収納し易いシステム収納を計画致しました。

洗面室には冷暖房を新設し浴室入口は引き込みドアを採用。窓は最低限の大きさを確保していますので日中も暗くはありません。

それではここからは工事の写真にて解説していきます。

005.jpg

タイル及び下地がコンクリートのお風呂は断熱性が悪く本当に冬寒いですね。

001.jpg

当時の洗面台としては大変収納が多く不便はしていませんでしたが引き出しが細かく物の収納場所が特定しづらい状態です。

004.jpg

北面の窓で単板ガラスです。これでは脱衣する洗面室も寒くなってしまいます。

006.jpg

ご家族それぞれの衣類収納が定まらず奥様も困っていました。

こここからは解体です。

007.jpg

009.jpg

010.jpg

それでは第2回をお楽しみに。

一覧へ戻る

お見積・ご相談・お問い合わせはこちら

お見積・ご相談・お問い合わせはこちら

0120-495-419