埼玉県 M様邸 2024年7月 6日
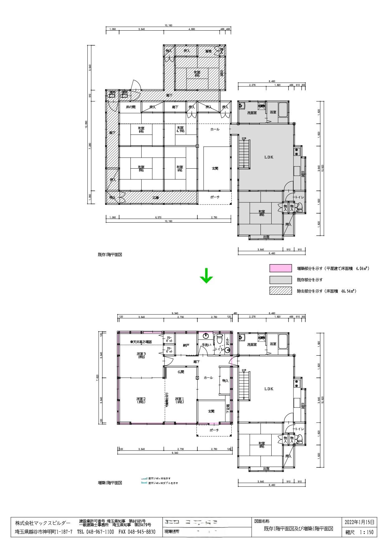
吉川市に位置する築60年以上の古民家は、長らく使用されておらず、そのままでは住めない状態でした。今回のリフォームでは、リビングと寝室として快適に使用できる空間へと再生することを目指しました。
古民家は、木造の美しい構造が残る一方で、長年の使用による劣化や設備の老朽化が進んでいました。特に床や壁の傷みが目立ち、断熱性も低いため、快適な居住空間とは言えない状態でした。
現代の生活に合った快適な住空間をめざし作業を行いました。
| 面積 | 70㎡ |
|---|---|
| 築年数 | 62年 |
| 工期 | 80日 |
| 費用(税込) | 1000万円〜 |
| 建物種別 | 戸建て |




