LIXILリフォームショップ雅の家

お見積・ご相談・お問い合わせはこちら 0120-158-381
LIXILリフォームショップ雅の家
お見積・ご相談・お問い合わせはこちら 0120-158-381

並んで料理できる家族のキッチン

愛知県 2025年8月12日

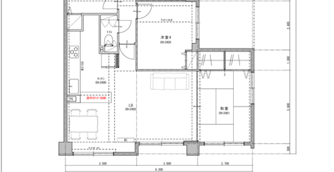
【LIXIL】の間口3150mmの大きなキッチンを採用。
ゆったりとしたスペースで、お料理好きのご家族が並んで楽しく調理できます。
白で統一したキッチンは木目との相性も良く、明るく温かみのある空間に仕上がっています。
もともと孤立していたキッチン空間は、壁を取り払うことで開放感のある空間に生まれ変わりました。

面積 113㎡
工期 2週間
費用(税込) 100〜300万円
建物種別 マンション
  • キッチン
  • デザインリフォーム
  • 趣味を楽しむ

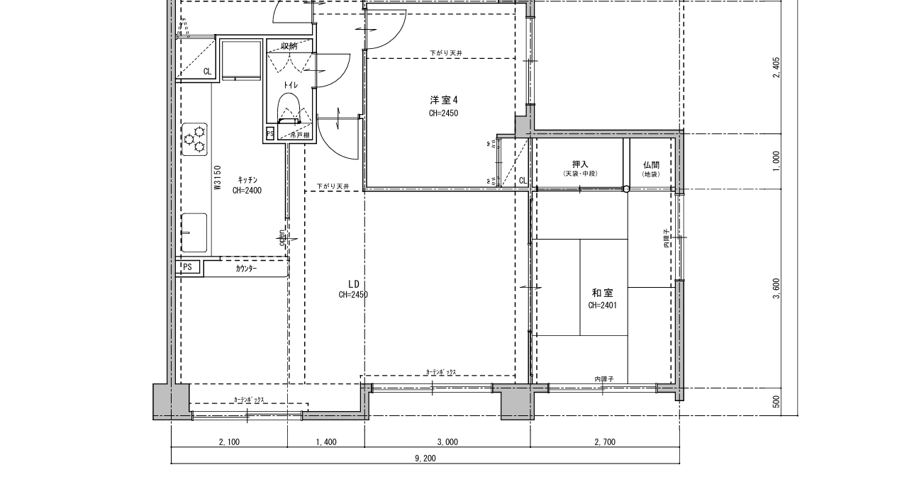
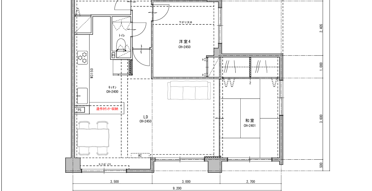
ビフォー・アフター

その他、リフォーム空間

ビルトインオーブンレンジ

火力の強いビルトインオーブンレンジを取り入れることで、お料理の幅が広がり、効率もアップ。

雅の家の施工事例一覧へ

お見積・ご相談・お問い合わせはこちら

お見積・ご相談・お問い合わせはこちら

0120-158-381