LIXILリフォームショップ雅の家

お見積・ご相談・お問い合わせはこちら 0120-158-381
LIXILリフォームショップ雅の家
お見積・ご相談・お問い合わせはこちら 0120-158-381

目隠し壁のある家

愛知県 2024年12月10日

キッチンを隠すことのできる目隠し壁。部屋のアクセントでもあり、生活感を少なくする役目も持ち合わせています。
全体的に落ち着いた色合いでまとめ、リラックスできる空間になるようにコーディネートしました。

費用(税込) 500〜1000万円
建物種別 マンション
  • キッチン
  • リビング・居室
  • 玄関まわり
  • デザインリフォーム

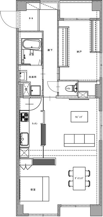
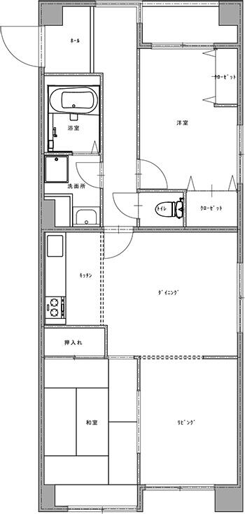
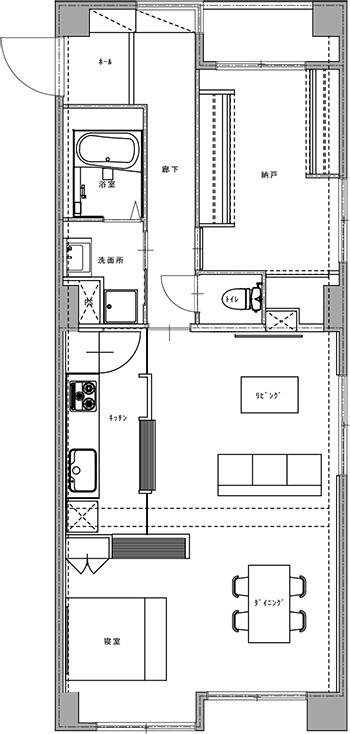
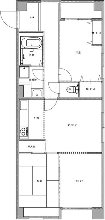
ビフォー・アフター

その他、リフォーム空間

キッチン

目隠し壁の裏側にはお客様のご要望でお酒収納できるカウンターを設置。

雅の家の施工事例一覧へ

お見積・ご相談・お問い合わせはこちら

お見積・ご相談・お問い合わせはこちら

0120-158-381