事例紹介
リフォーム事例を探す
リフォーム場所から検索
キッチン
ダイニング
リビング・居室
寝室
浴室
洗面化粧室
トイレ
玄関まわり
門まわり
屋根・外壁
ベランダ・バルコニー
ガーデンスペース
カースペース
住まいのこだわり
バリアフリー
耐震補強
オール電化
省エネ
自然素材
収納
デザインリフォーム
中古リフォーム
古民家再生
家族の変化
趣味を楽しむ
ペットと暮らす
お客さまの声
3Dシミュレーション
事例紹介
LIXILリフォームショップを探す
LIXILリフォームショップについて
LIXILリフォームショップについて
サービス向上・品質改善の取り組み
お客さま満足度アンケート
ここちいい暮らしをつくる、価値・性能向上リノベーション
リフォームコンシェルジュ®
ライフスタイルコンパス
リフォームアクセル
中古物件探しから性能向上リフォームをワンストップ
LIXILリフォームショップのコンセプト
リフォームお役立ち情報
おすすめ情報
加盟店募集
住宅リフォーム・リノベーション専門のLIXILリフォームショップ
LIXILリフォームショップを探す
愛知県
LIXILリフォームショップ 雅の家
施工事例
光差す住処
LIXILリフォームショップ
雅の家
お見積・ご相談・お問い合わせはこちら
0120-158-381
無料でご相談
この会社のウェブサイトはこちら
LIXILリフォームショップ
雅の家
お見積・ご相談・お問い合わせはこちら
0120-158-381
無料でご相談
この会社のウェブサイトはこちら
店舗ホーム
スタッフ紹介
施工事例
イベント&
キャンペーン
スタッフブログ
おすすめ情報
会社案内
光差す住処
愛知県 2020年7月14日
リフォーム部位
全面改装
工期
2カ月
費用(税込)
300〜500万円
建物種別
戸建て
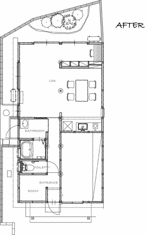
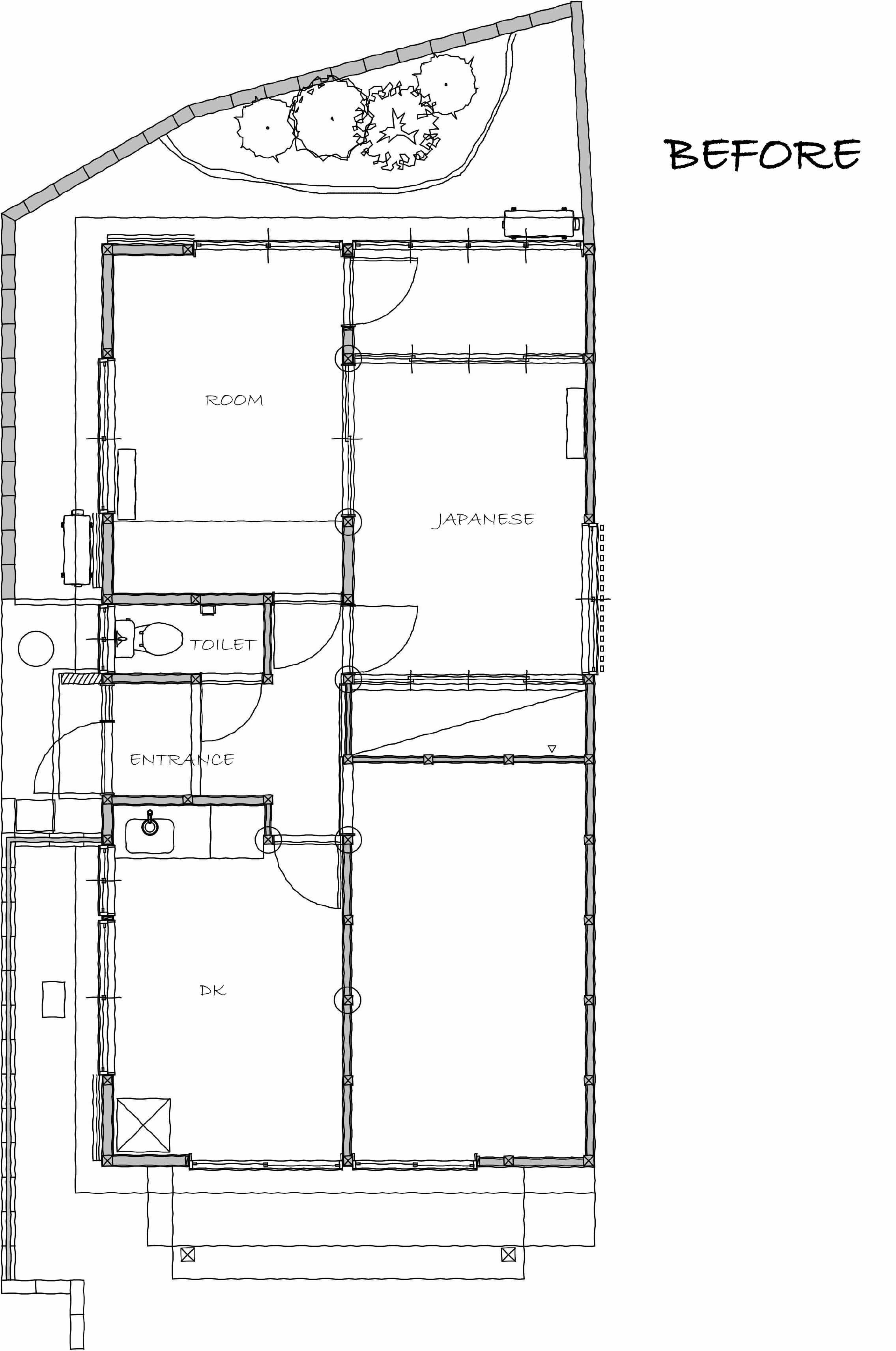
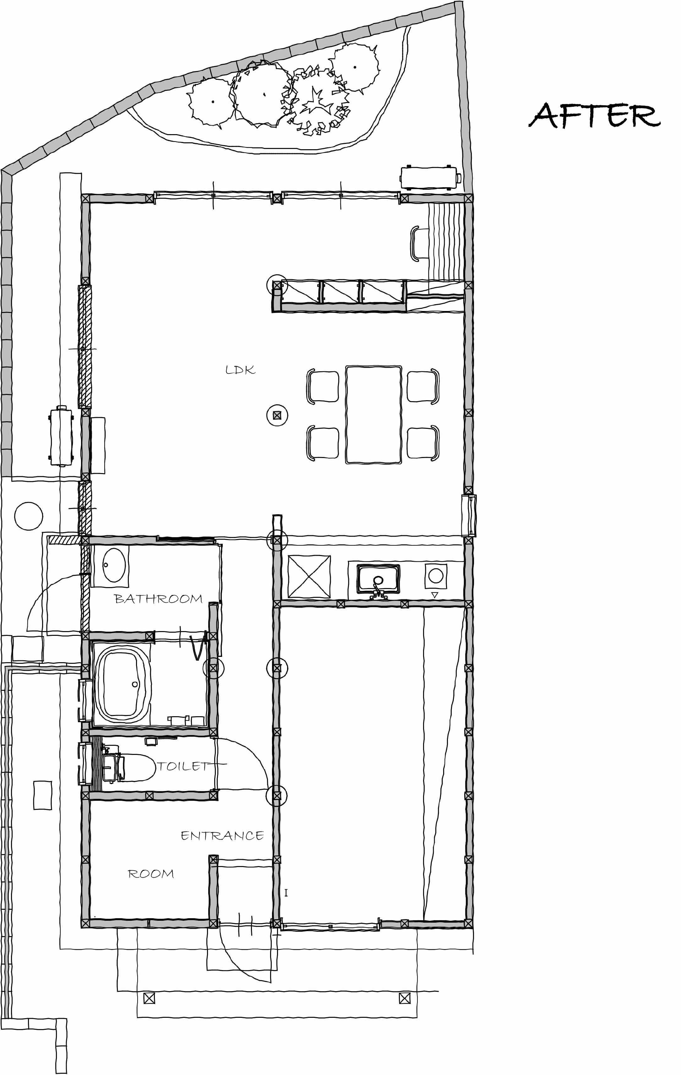
ビフォー・アフター
その他、リフォーム空間
趣味のお酒や読書を楽しめる空間へ
南側の掃き出し窓から沢山の光が入るリビング・ダイニング目線の高さより少し高い位置に合わせた収納は、外からの目線を遮ることができ、室内を区切ることなく 広々とした空間を保つことができます。アクセントクロスや柄の入ったクッションフロアで明るく、楽しい空間となりました。
雅の家の施工事例一覧へ
お見積・ご相談・お問い合わせはこちら
お見積・ご相談・お問い合わせはこちら
0120-158-381
無料でご相談