LIXILリフォームショップ雅の家

お見積・ご相談・お問い合わせはこちら 0120-158-381

LIXILリフォームショップ雅の家

お見積・ご相談・お問い合わせはこちら 0120-158-381

「山小屋風」デザインにこだわったマンションリノベーション

愛知県 2020年4月 5日

登山が趣味のご夫婦だけに、デザインコンセプトは「山小屋風」。床だけでなく壁にも無垢のパイン材をあしらい、温もりある素材感を。そしてコンクリートスラブを剥き出しにした天井や、オールステンレスのシンプルなフレームキッチンの無機質な素材感を組み合わせ、コンセプトにぴったりの住まいが実現しました。

築年数 30年以上
工期 2ヵ月
費用(税込) 500〜1000万円
建物種別 マンション
  • キッチン
  • リビング・居室
  • 洗面化粧室
  • 玄関まわり
  • 自然素材
  • デザインリフォーム
  • 趣味を楽しむ

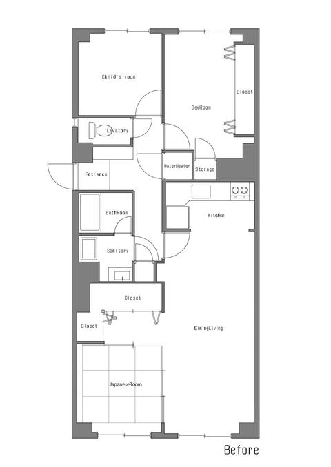
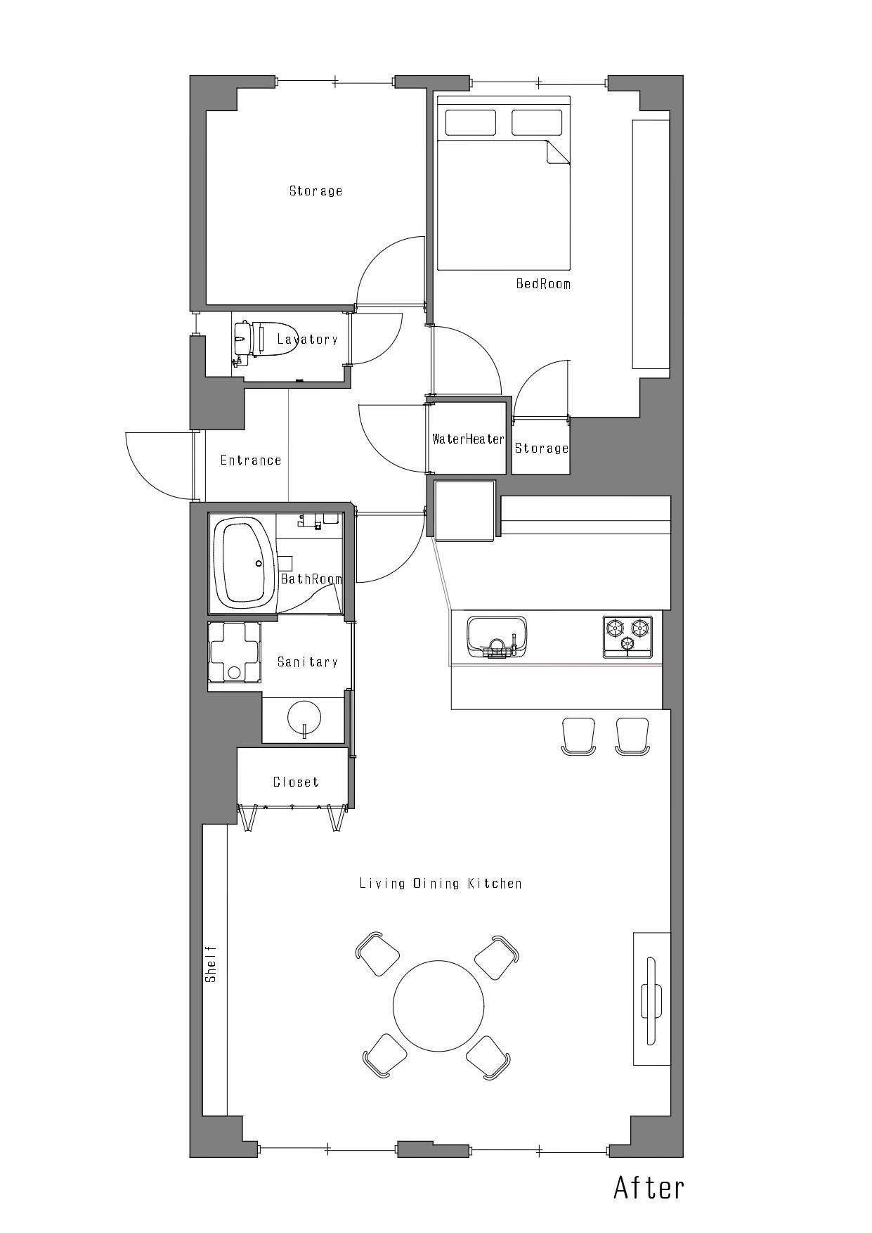
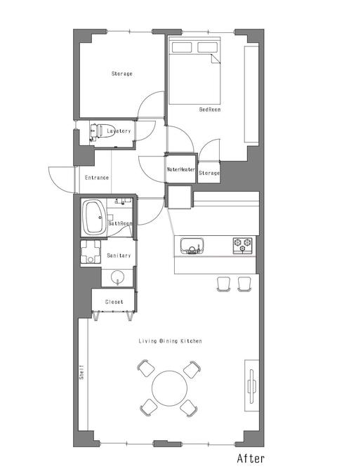
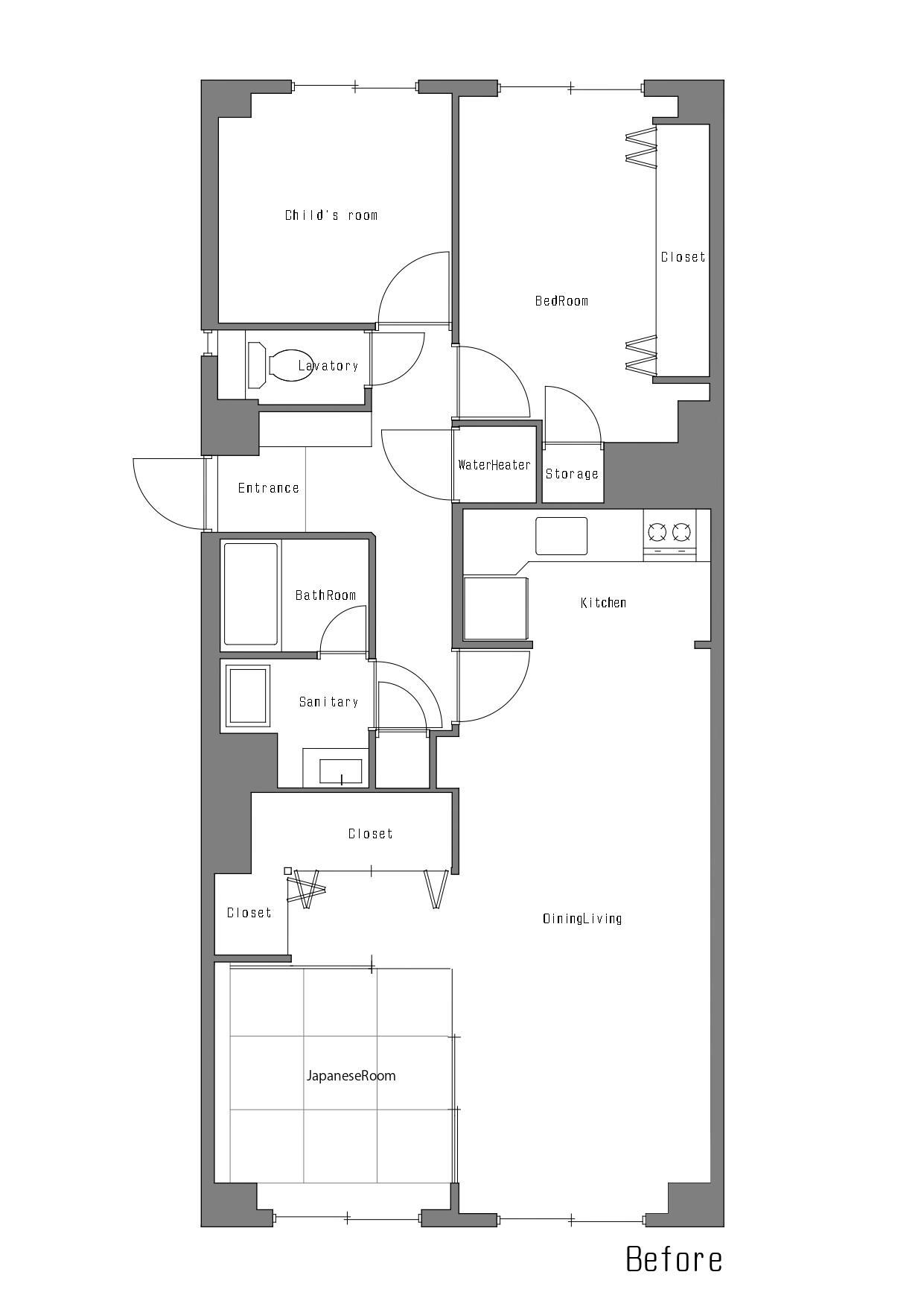
ビフォー・アフター

その他、リフォーム空間

床、壁の無垢材と、キッチンのステンレスの対比が美しい。
キッチン位置を変更したことから排水管の勾配が必要となり、キッチンのみ床高を上げることに。そこで、あえて床材を石調にし異素材のものにすることで、デザインとして変化をつけた。

担当者コメント

LIXILリフォームショップ雅の家 プランナー 野津 雄馬

デザインに関してはかなり具体的にイメージをお持ちだったので、無垢材や剥き出しのコンクリートをいかにバランス良く見せるか、3Dパースを使って綿密に打ち合わせを重ねました。 間取りに関しては廊下をLDKに取り込み、より広く開放的なLDKとするご提案をしました。洗面室へ直接アクセスできる動線も気に入って下さいました

雅の家の施工事例一覧へ

お見積・ご相談・お問い合わせはこちら

お見積・ご相談・お問い合わせはこちら

0120-158-381