LIXILリフォームショップハウスドクター山口 山口店

お見積・ご相談・お問い合わせはこちら 0120-61-5700
LIXILリフォームショップハウスドクター山口 山口店
お見積・ご相談・お問い合わせはこちら 0120-61-5700

★3日間限定!安岡モデルハウスGRANDOPEN★

20260227半5段宇部・小野田エリア_page-0001.jpg

このたび、
リフォーム会社がつくる本気のモデルハウスが、ついにオープンします。

数えきれない住まいと向き合ってきた私たちだからこそ分かる、
家の弱点、不安、そして本当に必要な性能。
何度も会議を重ね、現場では職人たちが苦労と試行錯誤を重ねながら、
耐震の「強さ」と断熱の「快適さ」を追求した一軒を完成させました。

当日は、普段は見ることのできない構造や工夫を、
見て・触れて・体感できるオープンイベントを開催。

**リフォーム会社だからこそ実現できた"本気の住まい"**を、
ぜひこの機会にご体感ください。

S__45891591.jpg

※こちらの写真はご覧いただくリノベーションモデルハウス施工前の外観写真です。

■既存建物データ

・築 年 数:築54年

・ 構 造 :木造/鉄骨の混構造

・延べ床面積:187.34㎡

■HSR:リノベーション後の性能値

・上部構造評点  耐震2倍 0.80→1.66 耐震等級3

 ※数字が大きいほど性能が高い

・UA値(平均熱貫流率) 断熱7倍 2.26→0.33 断熱等級6

 ※数字が小さいほど性能が高い

・C値(隙間相当面積) 0.65

※上部構造評点1.66

 上部構造評点は、建物の耐震性能を数値で示す指標であり、地震に対する強度を評価するために使用されます。

※耐震等級3

 建物の耐震性能を表す指標

※UA値0.33

 建物の断熱性能を示す指標

※断熱等級6

 断熱等級は、住宅の断熱性能を評価するための基準で、等級1から7までの7段階に分かれています。

※C値0.65

 C値は住宅の気密性能を示す数値

既存S__45637662_0.jpg  工事後S__45637663_0.jpg

IMG_6061.JPG スクリーンショット 2025-10-28 115059.jpg IMG_7419.JPG IMG_1541.JPG

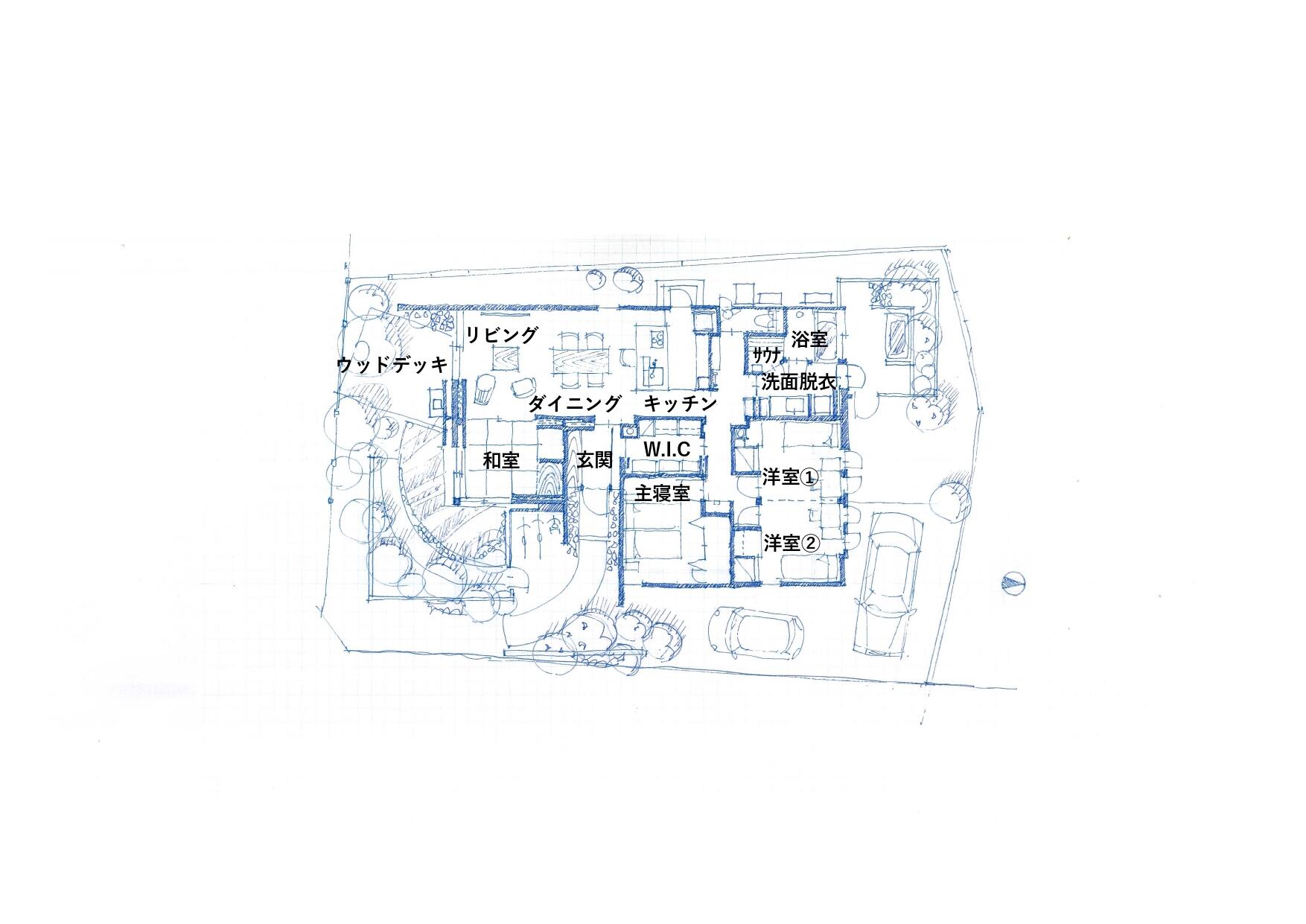
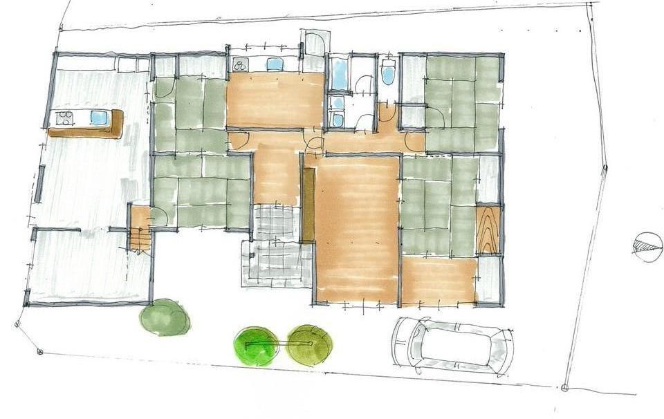
広告旧平面図 (3)_page-0001.jpg 広告平面図 (3)_page-0001.jpg

【見どころポイント盛りだくさん】

①見える制震補強金物

②見える内装用耐震補強材

③外部と繋がって見える塗壁

④見える基礎抱き補強

⑤スチロール製の塀

54年前から支えている構造材

⑦蓆を使った土間仕上げ

同時開催
リノベーション・リフォーム相談会

建て替えかリノベか・実家リノベ・断熱・性能向上・古民家リノベ・水廻りリフォーム・内装リフォームなど

弊社、初となるモデルハウスのGRANDOPENとなります。

リノベーション・リフォームを検討、または興味を持たれているお方は是非ご来場ください。

★予約して特典GET★(有名コーヒーチェーン3,000円分ギフトカードプレゼント)

【今すぐ申込む】

※数量限定となります。予めご了承ください。

※予約なしでのご来場の方はプレゼント対象外となります。

一覧へ戻る

お見積・ご相談・お問い合わせはこちら

お見積・ご相談・お問い合わせはこちら

0120-61-5700