LIXILリフォームショップ住まいのよろず家

お見積・ご相談・お問い合わせはこちら 06-6429-4628

LIXILリフォームショップ住まいのよろず家

お見積・ご相談・お問い合わせはこちら 06-6429-4628

尼崎市 マンションリフォーム

兵庫県 2020年5月 8日

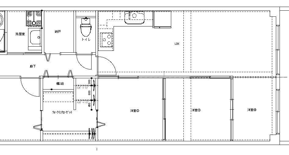
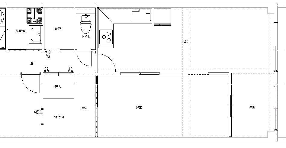
風通しのよいお住まいを。
広い1部屋を扉で仕切り奥様のお部屋に。
扉を開ければバルコニーから北側のお部屋まで風が通るようになりました。
奥行が深い廊下のクローゼットを使い勝手の良い深さにし、その分ウォークインクローゼットを広げました。

リフォーム部位 キッチン 洗面室 床 窓 クローゼット
工期 1ヶ月半
費用(税込) 300〜500万円
建物種別 マンション
  • キッチン
  • 洗面化粧室
  • 収納
  • 家族の変化

ビフォー・アフター

その他、リフォーム空間

LIXILシエラ

住まいのよろず家の施工事例一覧へ

お見積・ご相談・お問い合わせはこちら

お見積・ご相談・お問い合わせはこちら

06-6429-4628