LIXILリフォームショップベストリホーム

お見積・ご相談・お問い合わせはこちら 0120-39-4803

LIXILリフォームショップベストリホーム

お見積・ご相談・お問い合わせはこちら 0120-39-4803

K様邸フルリノベーション第5弾 ~収納の工夫ですっきりと~

こんにちは!
墨田区錦糸町のLIXILリフォームショップベストリホームです。

K様邸フルリノベーション第5弾は
WIC(ウォークインクローゼット)・廊下・玄関のビフォーアフター
を紹介していきます。

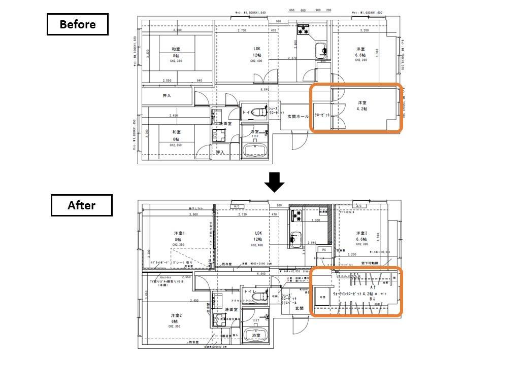
まずはウォークインクローゼットから見ていきます。
図面でみるとこちらの部分です↓

2.JPG


洋室1室をウォークインクローゼットに変えていきます!

<Before>

3.JPGのサムネイル画像


<After>

4.jpgのサムネイル画像


お部屋の真ん中に窓があったので
壁を造作し、2列のウォークインクローゼットに
生まれ変わりました。

右側は棚と長手の洋服を
左手は棚と短手の洋服にもう一段棚を設置したので
物を置いたり、棚下にキャビネットを置いたりと

様々な物を収納できる工夫が(^^♪

視点を変えて窓側からのビフォーアフターも見ていきます。

<Before>

5.JPGのサムネイル画像


<After>

6.jpgのサムネイル画像


入口横の物入れだったスペースは
棚板を1枚入れて、布団を収納できるスペースにしました。

これだけのスペース・収納量があれば、衣類をまとめてしまえるので管理がしやすく
衣替えの手間もありません。

各お部屋に衣類の収納スペースも省けるので
お部屋を広くより自由にお使い頂けます!

収納スペースや服の管理に困っている方は
ぜひウォークインクローゼットを
検討してみてはいかがでしょうか?

今回の施工事例が参考になれば幸いです。

次回は玄関・廊下のビフォーアフターを紹介していきます。

私共、ベストリホームでは江東区、墨田区中心に
お客様のより良い生活のお手伝いをさせていただいております。
LIXILリフォームショップ ベストリホームまでお気軽にお問合せください。
皆様のお問い合わせ、ご来店をお待ちしております!

一覧へ戻る

お見積・ご相談・お問い合わせはこちら

お見積・ご相談・お問い合わせはこちら

0120-39-4803