LIXILリフォームショップベストリホーム

お見積・ご相談・お問い合わせはこちら 0120-39-4803

LIXILリフォームショップベストリホーム

お見積・ご相談・お問い合わせはこちら 0120-39-4803

K様邸フルリノベーション第3弾 ~明るく暖かいリビング空間~

こんにちは!
墨田区錦糸町のLIXILリフォームショップベストリホームです。

K様邸フルリノベーション第3弾は
リビング空間のビフォーアフターを紹介いたします。
8.jpg

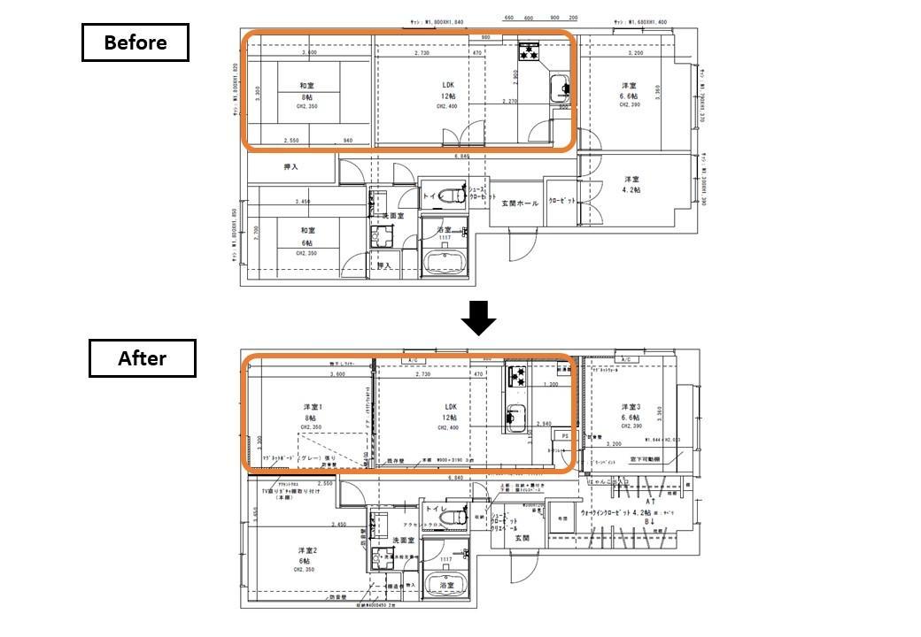
間取りで見るとこの位置になります↓
2.JPG

もともとはリビングの横に和室がありましたが、
こちらを洋室に変えていきました。

それではビフォアフターを見ていきます
まずはリビングからみた全体の様子です。
<Before>
3  (1).JPG
<After>
3  (2).JPG

長年お住まいで古くなってきた内装を新しくして
明るいお部屋に変わりました。

窓にはインプラスを設置して断熱しつつ
お部屋に差し色をしてカントリーな雰囲気をプラス

もともと陽当たりもいいので暖かくリビングが
更にリラックスできる空間になりました!


続いては和室からリビングまでの全体の様子です。
<Before>
4.JPG
<After>
1.5.jpg

従来の和室を洋室に変えていきました。
壁紙はグレーをセレクト。

グレーはシックでおしゃれな部屋が叶うと人気のお色です
またいろいろなインテリアに合わせやすいので、
さまざまな場所に使えるのも特徴のひとつです!

間仕切りの白い建具を閉めれば
静かな個室にもなります。

6.jpg

別の角度からも和室のビフォーアフターを見てみます

<Before>
7.JPG
<After>
8.jpg

窓の左側にはマグネットウォールを設置しています。

別の洋室の紹介時に詳しく説明しますが、
マグネットアイテムを活用できるので
お好きな絵を飾ったり、メモを貼り付けることができます!

またリビング同様にインプラスを設置しています(^^)

リビングと合わせて明るく暖かいお部屋に生まれ変わりました!

次回はマグネットウォールや収納たっぷりの個室のビフォーアフターを紹介していきます。

私共、ベストリホームでは江東区、墨田区中心に
お客様のより良い生活のお手伝いをさせていただいております。
LIXILリフォームショップ ベストリホームまでお気軽にお問合せください。
皆様のお問い合わせ、ご来店をお待ちしております!

一覧へ戻る

お見積・ご相談・お問い合わせはこちら

お見積・ご相談・お問い合わせはこちら

0120-39-4803