LIXILリフォームショップベストリホーム

お見積・ご相談・お問い合わせはこちら 0120-39-4803

LIXILリフォームショップベストリホーム

お見積・ご相談・お問い合わせはこちら 0120-39-4803

K様邸フルリノベーション第1弾 ~自分らしい住まい~

こんにちは!
墨田区錦糸町のLIXILリフォームショップベストリホームです。

①1.jpg

今回は、築38年K様邸マンションフルリノベーションの
施工事例についてご紹介していきます!

全8回に分けてお届けいたします。

<目次>
第1弾:コンセプト・工事内容・施工前の様子
第2弾:キッチンの紹介
第3弾:リビングと和室の紹介
第4弾:個室の紹介
第5弾:WICの紹介
第6弾:廊下・玄関の紹介
第7弾:浴室・洗面・トイレの紹介
第8弾:まとめ


・ ・ ・ ・ ・ ・ ・ ・ ・ ・ ・ ・ ・

さて第1弾はコンセプト・工事内容・施工前の様子ということで、
K様邸フルリノベーションのストーリーをご紹介いたします。


K様は弊社のイベントにご来場され、ご自宅のリノベーションのご相談となりました。
イベントからのご相談・ご依頼をされる方は多くいらっしゃいます。

実際に現場を見る事でイメージが膨らみ、
不安な点が解消され、安心して工事へと進めることができますよ◎

イベント情報はインスタグラムでも更新していきますので
気になる方はフォローしてみてください。

さて今回の物件は築38年ということで
設備や内装が古くなっていたため、
すべて新しく変えていきました。

また「たくさんの本を収納するスペースが欲しい」というご要望に
個々のお部屋はもちろん、廊下の壁の厚みも利用して本棚を造作しました。

そしてファミリークローゼットを設け、家具をおかない生活をご提案。
プライベートな個室を広々とお使いいただけるようプランしていきました。


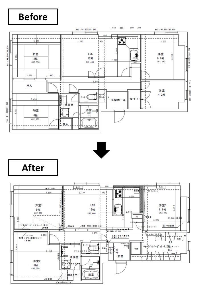
間取り図のビフォーアフターはこちらです↓
①2.jpg


壁付けキッチンを対面式にして明るく開放的な空間にしたり、
洋室のひとつをウォークインクローゼットにしたり
和室を洋室に変更していきます!

そして気になる施工前写真はこちらです↓
①3.JPG

①4.JPG

①5.JPG   
①6.JPG

①7.JPG
 

さて、これからどのように変化していくのでしょうか...!

次回よりビフォーアフターの様子を詳しくお伝えしていきます。


私共、ベストリホームでは江東区、墨田区中心に
お客様のより良い生活のお手伝いをさせていただいております。
LIXILリフォームショップ ベストリホームまでお気軽にお問合せください。
皆様のお問い合わせ、ご来店をお待ちしております!

一覧へ戻る

お見積・ご相談・お問い合わせはこちら

お見積・ご相談・お問い合わせはこちら

0120-39-4803