LIXILリフォームショップ黒澤工務店

お見積・ご相談・お問い合わせはこちら 0800-888-9630
LIXILリフォームショップ黒澤工務店
お見積・ご相談・お問い合わせはこちら 0800-888-9630

LIXIL埼玉/リシェルSI/間仕切り壁をなくし、便利で広々とした空間に/間取り変更

埼玉県 H様邸 2025年5月 9日

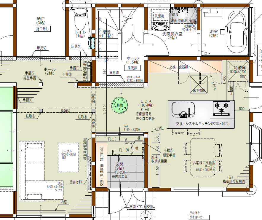
玄関ホールを中心にLDKと居室が区切られていたため、移動が億劫になることも。
間取りを新たにし、L+DKとしてゆとりある一つの空間に。
キッチンは対面式のアイランドキッチンに変更。空間に広がりを持たせました。

費用(税込) 1000万円〜
建物種別 戸建て
  • キッチン
  • リビング・居室
  • バリアフリー

ビフォー・アフター

その他、リフォーム空間

キッチンBefor

黒澤工務店の施工事例一覧へ

お見積・ご相談・お問い合わせはこちら

お見積・ご相談・お問い合わせはこちら

0800-888-9630