LIXILリフォームショップモンテホーム

お見積・ご相談・お問い合わせはこちら 0120-151-666
LIXILリフォームショップモンテホーム
お見積・ご相談・お問い合わせはこちら 0120-151-666

マンションリノベーション~穏やかな光に包まれた暮らし

滋賀県 I様邸 2025年8月17日

築35年マンションの内装・水廻りリフォームのご紹介です。

築年数 約35年
工期 約1カ月
費用(税込) 500〜1000万円
建物種別 マンション
  • キッチン
  • リビング・居室
  • 洗面化粧室
  • バリアフリー

ビフォー・アフター

その他、リフォーム空間

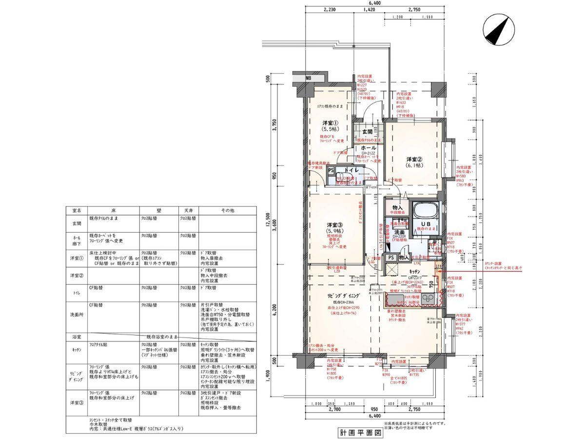
施工後 平面図

担当者コメント

LIXILリフォームショップモンテホーム 藤田 健太郎

築35年、マンションの内装・水廻りリフォームを承りました。 設備の老朽化が進み、床の段差や狭い間取りによる圧迫感を感じておられました。 リビングと隣接していた和室は洋室へと変更しました。パーテーションには軽くて耐久性に優れたアクリルパネルを採用しました。間仕切りを閉じたときも自然光を取り込み、空間の広がりを感じることができます。 将来を見据えたバリアフリー設計で段差をなくし、内窓を設置することにより断熱性も加わりました。 これからも長く安心して生活して頂ければ幸いです。 この度はモンテホームにご依頼頂きありがとうございました。

モンテホームの施工事例一覧へ

お見積・ご相談・お問い合わせはこちら

お見積・ご相談・お問い合わせはこちら

0120-151-666