LIXILリフォームショップイデキョウホーム

お見積・ご相談・お問い合わせはこちら 0120-122-975
LIXILリフォームショップイデキョウホーム
お見積・ご相談・お問い合わせはこちら 0120-122-975

ご夫婦の思いが詰まったマンションリノベーション

静岡県 富士市T様邸 2025年12月 1日

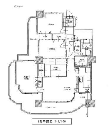
LDKと和室の間仕切、洋室2間の間仕切りを撤去して大きなLDK・大きな主寝室を作成
L型キッチンをLIXILリシェルでニの字型に置き換えました。
ユニットバス交換、洗面化粧台交換、トイレ交換
天井はビニールクロス張替・壁はエコカラットをほぼ全室にアクセント貼り、他はビニールクロス張替、床は全てフロアタイル上貼
主寝室になる部屋にインプラス設置。
ホールにゴルフ用品が納められる収納を新設
主寝室にも収納力が落ちないようにクローゼットを設置

面積 86㎡
築年数 30年
工期 80日
費用(税込) 500〜1000万円
建物種別 マンション
家族構成 ご夫婦
  • キッチン
  • 寝室
  • 浴室
  • 洗面化粧室
  • トイレ
  • 収納
  • 中古リフォーム
  • 家族の変化

ビフォー・アフター

その他、リフォーム空間

リシェル!二の字型にする事で収納力アップ

既存L型キッチン・腰壁カウンターを撤去、新たにダイニング側に腰壁カウンターを寄せ、
キッチンリシェル ダイニング側シンクW1830を設置しました。
セラミックトップ天板、ラクパット収納、ナビッシュ水栓、食洗機など機能も充実
注意点、床暖房があり腰壁の移動にはサーモグラフィーを使って床暖房を傷つけないように配慮しました。
※キッチン脇の壁にマグネットパネルを貼り、マグネット型収納棚がつけられるように

担当者コメント

LIXILリフォームショップイデキョウホーム 店長 塩川 昌明

とても気さくで心使いがうれしく感じてしまうご夫婦様です。 SNSでのやり取りだけでなく何度となく訪問させていただいて、今回のリノベーションとなりました。 当社の女性インテリアコーディネーターがショールーム見学も同席してくれたりした事も安心できると判断されたのではないかと思います。 工事も打合せ通り、遅れることなく完了となりました。 今回、ご理解のあるお施主様、尽力してくれた監督、助力してくれたスタッフに感謝いたします。

イデキョウホームの施工事例一覧へ

お見積・ご相談・お問い合わせはこちら

お見積・ご相談・お問い合わせはこちら

0120-122-975