静岡県 T様邸 2022年5月17日
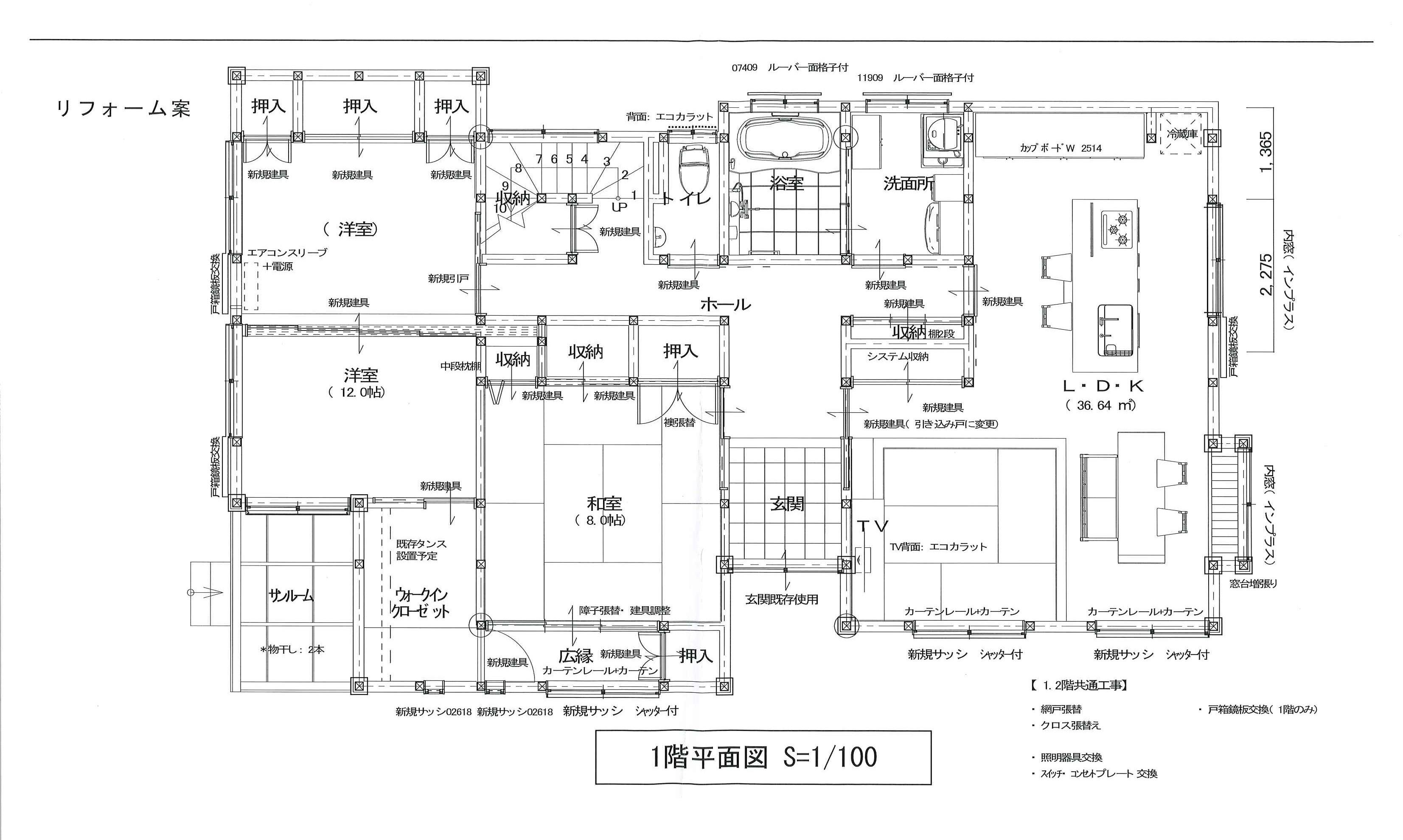
DK8帖+和室居間8帖+和室6帖を大きく24帖のLDKに改造
アイランドキッチン リシェルSI ラクパット収納
大容量カップボード リシェルSI W900トール収納+W1550カウンターキャビネット
床 バリアフリー 合板下地 12mmフローリング貼
壁 ビニールクロス貼 一面エコカラット ディニタ貼
天井 K側ビニールクロス貼 LD側 天井用化粧板貼
| リフォーム部位 | 全体 |
|---|---|
| 築年数 | 35年 |
| 工期 | 3.5ヶ月 |
| 費用(税込) | 1000万円〜 |
| 建物種別 | 戸建て |
| 家族構成 | 父母+本人 |









担当者コメント
LIXILリフォームショップイデキョウホーム アドバイザー 土橋 克守
親から子へバトンリレーのお宅です。 お施主様はダイニングでの会話を大事にされているようで何度かキッチンのプラン、間取りを工夫されて今回のプランになりました。 完成して設備等を確認されて、とても満足されているようでした。 自分も大きな仕事を全う出来て大変嬉しく思っています。 これから長くご自宅での時間を楽しんでいただきたいと思います。 ありがとうございました。