LIXILリフォームショップイデキョウホーム

お見積・ご相談・お問い合わせはこちら 0120-122-975

LIXILリフォームショップイデキョウホーム

お見積・ご相談・お問い合わせはこちら 0120-122-975

ピアノ室もあるゆとりの住宅にリノベーション

静岡県 U様邸 2022年5月11日

DK-居間-土間をLDKに改造
キッチンはリシェルSI対面キッチンに変更
土間をLDKに組込んだ事で部屋全体が明るくなりました。

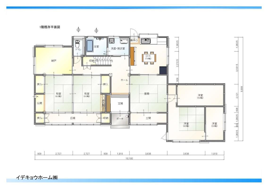
リフォーム部位 住宅1階部分全体
築年数 築32年
工期 4ヶ月
費用(税込) 1000万円〜
建物種別 戸建て
家族構成 夫婦2人・子供
  • キッチン
  • ダイニング
  • 浴室
  • 洗面化粧室
  • 玄関まわり
  • バリアフリー
  • 耐震補強
  • 省エネ
  • 収納
  • デザインリフォーム
  • 中古リフォーム
  • 家族の変化
  • 趣味を楽しむ

ビフォー・アフター

その他、リフォーム空間

リシェルSI

キッチン リシェルSIW2550 ハンズフリー水栓 IHコンロ
カップボード リシェルSI W1800
間取りを考える時に苦労する既存掃き出しサッシもペアガラスに交換するだけで利用できるように考えました。

担当者コメント

LIXILリフォームショップイデキョウホーム 店長 塩川 昌明

家族構成が変わられ、使い勝手を良くしたいとの事でご相談にいらっしゃいました。 暖かく、明るい間取りと収納の改善をテーマに考え立体的にプランをイメージしやすく提案させていただきました。 プランを見て奥様からは「こんな風に変えられるんですね。」と明るい声で感想を述べられていたことが印象的でした。 照明器具でも空間を素敵に演出できるように考え、人感センサー付照明器具で暗いスペースが無いように提案もさせていただきました。 これからの生活を楽しんでいただきたいと思います。 ありがとうございました。

イデキョウホームの施工事例一覧へ

お見積・ご相談・お問い合わせはこちら

お見積・ご相談・お問い合わせはこちら

0120-122-975