LIXILリフォームショップネダテ住建

お見積・ご相談・お問い合わせはこちら 0120-131-556

LIXILリフォームショップネダテ住建

お見積・ご相談・お問い合わせはこちら 0120-131-556

高気密・高断熱で暖かい冬を

2020.12.25

いつも皆さまよりたくさんのご依頼・ご相談をいただきまして誠にありがとうございます。

ブログ担当のネダテ住建 新入社員の佐藤まこです。

八回目の更新は「建築士」の話です。

11月某日...ネダテ住建の採用面接

「佐藤さんはゆくゆく2級建築士を目指して欲しい」

...ん?

[建築士]とな?

私にとっては無縁の資格だと思ってたのですが...

建築に携わる仕事の実務経験を7年間積むと受験資格の要件を満せるんですね。

【自分で設計したおウチを建てる】とか一度は想像したことありませんか?

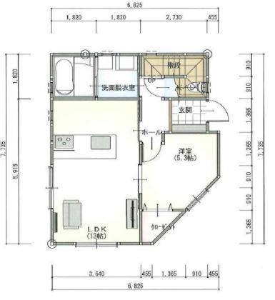
CAD.JPG

この妄想?想像?夢?を実現に向けて動かせる良い機会だと思い

ネダテ住建に入社することを決意しました!

えっと...私はイブもクリスマスもシングルベルなので...

平屋建ての2LDKを建てれるように頑張ります!

まずはCAD図面の勉強から☆

皆さまは暖かいクリスマスをお過ごしあれ♪

一家団欒でもシングルベルでも高気密・高断熱のおウチなら暖かい!

ネダテ住建の建てる高気密・高断熱のおウチで暖かい冬を☆

リフォームや住宅設備に関するお悩みはいつでもお気軽に電話やお問い合わせ欄よりご相談ください♪

磯子区・南区・中区・港南区のリフォーム、新築はネダテ住建にお任せください!!

■フリーダイヤル■ 0120-131-556

※HPのお問い合わせフォームもご利用ください※

お問い合わせはこちら

一覧へ戻る

お見積・ご相談・お問い合わせはこちら

お見積・ご相談・お問い合わせはこちら

0120-131-556