事例紹介
リフォーム事例を探す
リフォーム場所から検索
キッチン
ダイニング
リビング・居室
寝室
浴室
洗面化粧室
トイレ
玄関まわり
門まわり
屋根・外壁
ベランダ・バルコニー
ガーデンスペース
カースペース
住まいのこだわり
バリアフリー
耐震補強
オール電化
省エネ
自然素材
収納
デザインリフォーム
中古リフォーム
古民家再生
家族の変化
趣味を楽しむ
ペットと暮らす
お客さまの声
3Dシミュレーション
事例紹介
LIXILリフォームショップを探す
LIXILリフォームショップについて
LIXILリフォームショップについて
サービス向上・品質改善の取り組み
お客さま満足度アンケート
ここちいい暮らしをつくる、価値・性能向上リノベーション
リフォームコンシェルジュ®
ライフスタイルコンパス
リフォームアクセル
中古物件探しから性能向上リフォームをワンストップ
LIXILリフォームショップのコンセプト
リフォームお役立ち情報
おすすめ情報
加盟店募集
住宅リフォーム・リノベーション専門のLIXILリフォームショップ
LIXILリフォームショップを探す
東京都
LIXILリフォームショップ SHOEI 西荻店
施工事例
戸建全面改装①~玄関・ホール編~
LIXILリフォームショップ
SHOEI 西荻店
お見積・ご相談・お問い合わせはこちら
0120-372-228
無料でご相談
この会社のウェブサイトはこちら
LIXILリフォームショップ
SHOEI 西荻店
お見積・ご相談・お問い合わせはこちら
0120-372-228
無料でご相談
この会社のウェブサイトはこちら
店舗ホーム
スタッフ紹介
施工事例
イベント&
キャンペーン
スタッフブログ
ごあいさつ
会社案内
戸建全面改装①~玄関・ホール編~
東京都 M様邸 2016年11月27日
お母様が歩きやすいように各所に手摺を設置し、バリアフリー重視の全面改装を行いました。
築年数
20
費用(税込)
1000万円〜
建物種別
戸建て
ビフォー・アフター
その他、リフォーム空間
1階リフォーム前
1階リフォーム後
浴室・洗面所・トイレをご両親の部屋から近い位置に変更しました。それに伴い、階段の向きも変更しました。寝室の建具は引き戸にし、開口を広く取りました。
2階リフォーム前
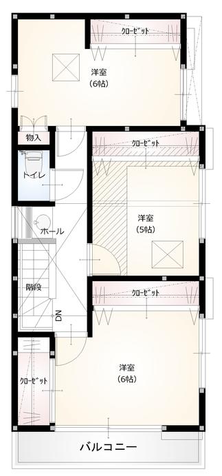
2階リフォーム後
2階に新たに洗面を取付け、洋室には新たにクローゼットを造りました。
リフォーム前
リフォーム後
玄関ドア・土間タイルを換えました。また、お母様のために手すりを設置しました。玄関の他にも設置した手すりは、とっさの時に掴むことができて事故防止に役立ちます。
SHOEI 西荻店の施工事例一覧へ
お見積・ご相談・お問い合わせはこちら
お見積・ご相談・お問い合わせはこちら
0120-372-228
無料でご相談