こちらの提示した希望を理解した上で、希望を超えるご提案をいただき、見違えるほど「広く明るい」住まいになりました。工事中の現場打合せも定期的にあったので、図面では分からなかった部分も、現場で理解しながら、安心して工事をしてもらえました。今回は住み替えでしたが、元の自宅のリフォームもお願いしたいと思います。
東京都 2025年2月 3日
───お客様のご要望───
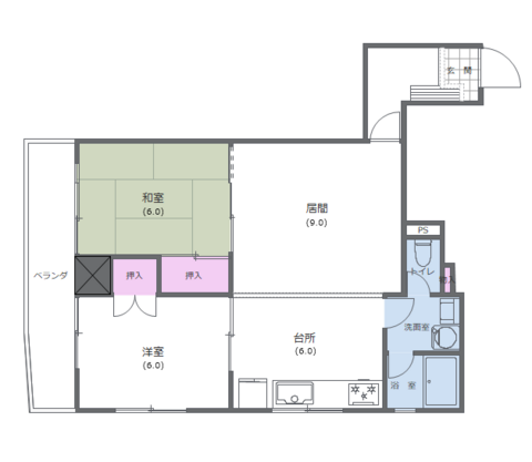
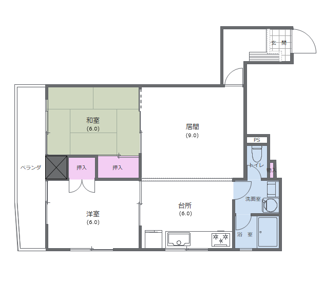
築45年、2DK、59㎡のマンション
①ベランダ側に和室と洋室があり、廊下側の居間と台所が暗く狭いので、家具は最小限にして「広く明るく」したい。
②トイレ、洗面室、浴室を広く快適な空間にしたい。
③夫婦でお酒を楽しむ空間と、友人たちが集まれる空間が欲しい。
───弊社からのご提案───
①ベランダ側からの採光を取り込むために、和室、居間、台所を一体化、広く開放的な『20帖1LDK』へ改修。洋室は主寝室、台所側の建具は透明度の高いガラスパネルにし、廊下側の部屋に自然光が届く、「広く明るい」間取りへ。
②トイレは、手洗い器の無いスリムデザインを選択。手洗器を別にし、トイレ空間を「広く」。洗面化粧台は、標準仕様のコンパクトタイプを選択し、洗面室も「広く」。浴室は、既存の設備や配置の見直し『0.75坪から1坪へ』拡大。
③台所は、キッチンを壁付けにし「広さと明るさ」とコストカットを実現。アイランドキッチン風に、収納を兼ねたキャビネットに天板、照明はペンダントライトに。バーカウンターのような作業台で、お酒も楽しめる設(しつら)えに。
| リフォーム部位 | LDK、主寝室、トイレ、洗面室、浴室 |
|---|---|
| 面積 | 59㎡ |
| 築年数 | 45年 |
| 工期 | 1ケ月 |
| 費用(税込) | 500〜1000万円 |
| 建物種別 | マンション |
| 家族構成 | 夫婦2人 |









こちらの提示した希望を理解した上で、希望を超えるご提案をいただき、見違えるほど「広く明るい」住まいになりました。工事中の現場打合せも定期的にあったので、図面では分からなかった部分も、現場で理解しながら、安心して工事をしてもらえました。今回は住み替えでしたが、元の自宅のリフォームもお願いしたいと思います。
担当者コメント
LIXILリフォームショップシステムホーム 加藤 毅 伊藤 祐基
「広く明るい」住まいを実現するために、存在感のある『梁』を目立たないようにすることと、収納スペースを確保することが、大きな課題でした。そのため、スケルトン状態まで内装を解体し、専有部分全ての更新を実施しました。【梁と天井高】天井の構造、配線、間取りを見直し、居住スペースは2.5m、梁部分は2.0mへ高さを確保。天井の照明を全てダウンライトにし、視覚的な高さを演出。存在感のある梁が目立ちにくい、スッキリとした空間になりました。【梁と収納】梁を目立たせず、重さを感じさせず、部屋に広さと高さを感じるよう白を基調としたインテリアを選択。寝室側の収納は、梁の下に設け、梁を居室に出さない間取りにし、天袋のデットスペースは収納に。LDKのTVボードと壁面収納は造作しました。