LIXILリフォームショップホームウェル熊谷

お見積・ご相談・お問い合わせはこちら 0120-598-235
LIXILリフォームショップホームウェル熊谷
お見積・ご相談・お問い合わせはこちら 0120-598-235

H様邸 改築工事

埼玉県 N様邸 2015年8月19日

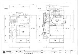
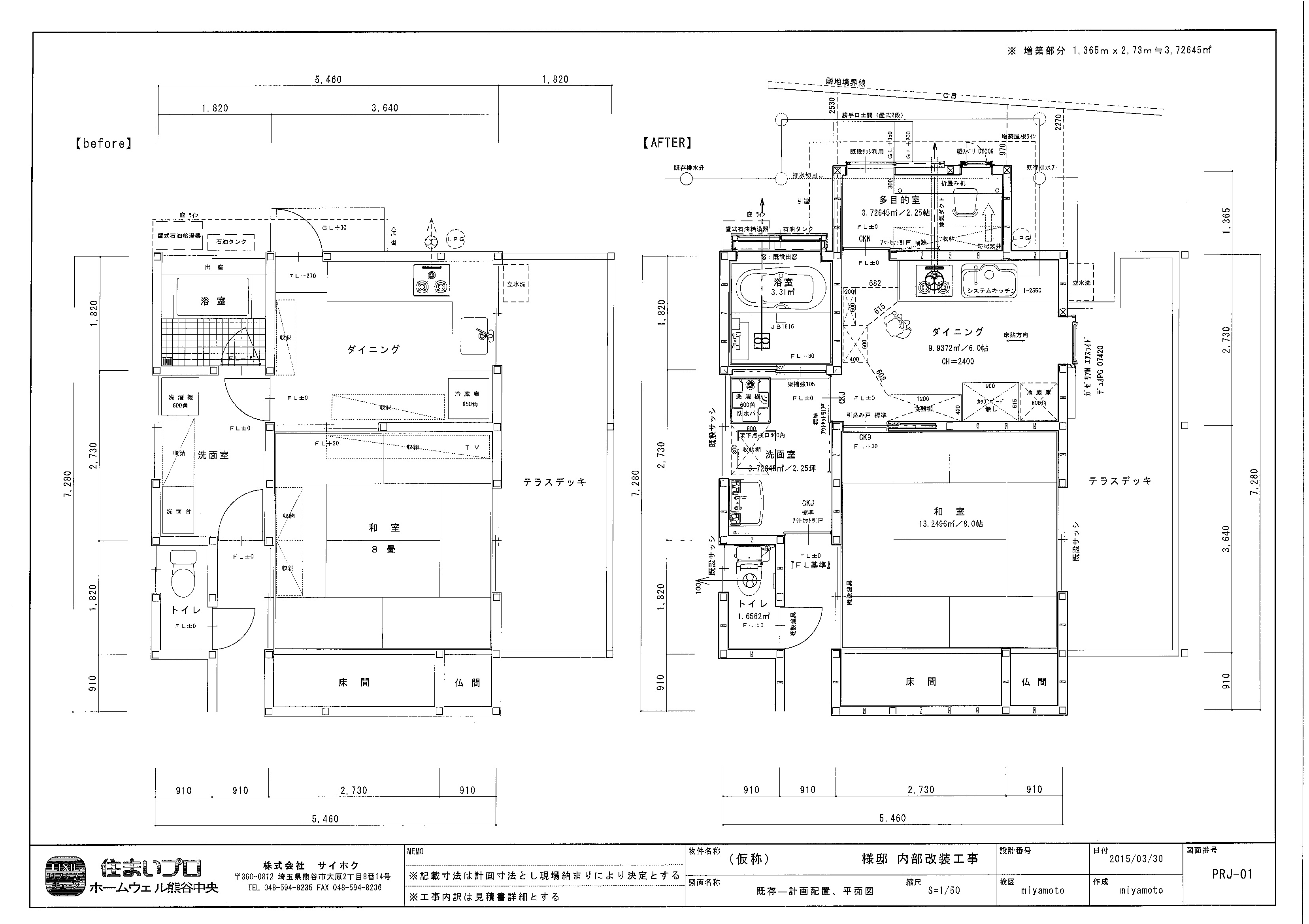
L型のキッチンからI型のキッチンに交換しました。高窓サッシは引戸の勝手口に交換し、扉閉めていても採風できる商品で施工しました。床は無垢材の塗装品にて仕上げています。

リフォーム部位 キッチン、お風呂、洗面、トイレ、増築(パントリースペース)
面積 22.35 ㎡/13.49 帖
築年数 30年
工期 一カ月半
費用(税込) 300〜500万円
建物種別 戸建て
家族構成 5人
  • キッチン
  • 洗面化粧室
  • トイレ
  • 屋根・外壁
  • リビング・居室
  • 省エネ
  • 自然素材
  • 収納
  • デザインリフォーム
  • 中古リフォーム
  • 趣味を楽しむ

ビフォー・アフター

その他、リフォーム空間

ユニットバス

タイルのお風呂から、ユニットバスに交換。解体時には、壁、天井にも断熱材を充填し、
ユニットバスも断熱パックの為保温が期待できます。

ホームウェル熊谷の施工事例一覧へ

お見積・ご相談・お問い合わせはこちら

お見積・ご相談・お問い合わせはこちら

0120-598-235