LIXILリフォームショップホームウェル熊谷

お見積・ご相談・お問い合わせはこちら 0120-598-235
LIXILリフォームショップホームウェル熊谷
お見積・ご相談・お問い合わせはこちら 0120-598-235

M様邸 改装工事

埼玉県 2014年1月10日

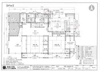
準寒冷地の為、冬はとても寒い地域です。断熱と結露でお悩みでしたので、内窓を施工しています。内装は自然素材にこだわった仕上げとなっております。

工期 2ヶ月
費用(税込) 300〜500万円
建物種別 戸建て
家族構成 5人
  • リビング・居室
  • 浴室
  • キッチン
  • ダイニング
  • バリアフリー
  • オール電化
  • 省エネ
  • 自然素材
  • デザインリフォーム

ビフォー・アフター

その他、リフォーム空間

トイレリフォーム

トイレ交換のリフォームです。桧の腰壁は奥様のお気に入りです

ホームウェル熊谷の施工事例一覧へ

お見積・ご相談・お問い合わせはこちら

お見積・ご相談・お問い合わせはこちら

0120-598-235