LIXILリフォームショップホームウェル熊谷

お見積・ご相談・お問い合わせはこちら 0120-598-235
LIXILリフォームショップホームウェル熊谷
お見積・ご相談・お問い合わせはこちら 0120-598-235

リノベーション工事

埼玉県 N様邸 2013年10月 7日

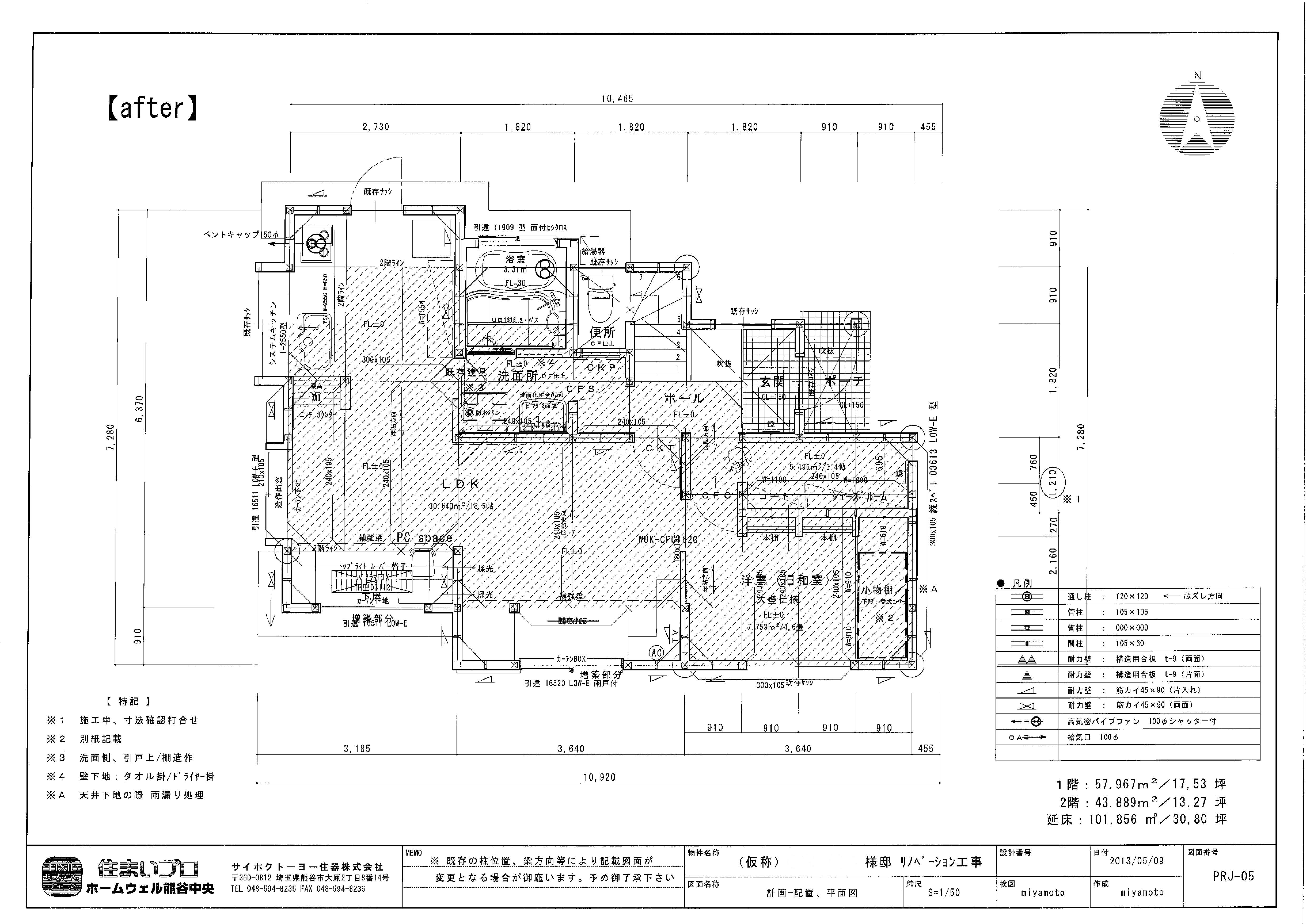
N様邸の一、二階、外壁、屋根の全面リフォームです。水廻りも最新の設備機器となり、愛犬と一緒に暮らしやすい空間に仕上がりました。

リフォーム部位 一階LDK(増築有り)、水廻り設備機器、二階寝室、外壁屋根塗装、門扉
面積 101㎡
築年数 25年
工期 3ヶ月
費用(税込) 500〜1000万円
建物種別 戸建て
家族構成 ご夫婦2人 愛犬2匹
  • リビング・居室
  • 玄関まわり
  • バリアフリー
  • 耐震補強
  • 省エネ
  • 自然素材
  • デザインリフォーム
  • 中古リフォーム
  • 家族の変化
  • 趣味を楽しむ
  • ペットと暮らす

ビフォー・アフター

その他、リフォーム空間

旦那様こだわりのパソコンスペース

旦那様のこだわりのパソコンスペースです。既存壁部分が筋交が交差(たすき)して入っている為、
構造上どうしても壊せない壁の為、筋交に干渉しない部分に15cm 角の明かりとりを作りました。
増築部分、勾配天井の下屋にはトップライト(天窓)を施工しました。

ホームウェル熊谷の施工事例一覧へ

お見積・ご相談・お問い合わせはこちら

お見積・ご相談・お問い合わせはこちら

0120-598-235