LIXILリフォームショップトヨダ建設

お見積・ご相談・お問い合わせはこちら 0120-50-7660

LIXILリフォームショップトヨダ建設

お見積・ご相談・お問い合わせはこちら 0120-50-7660

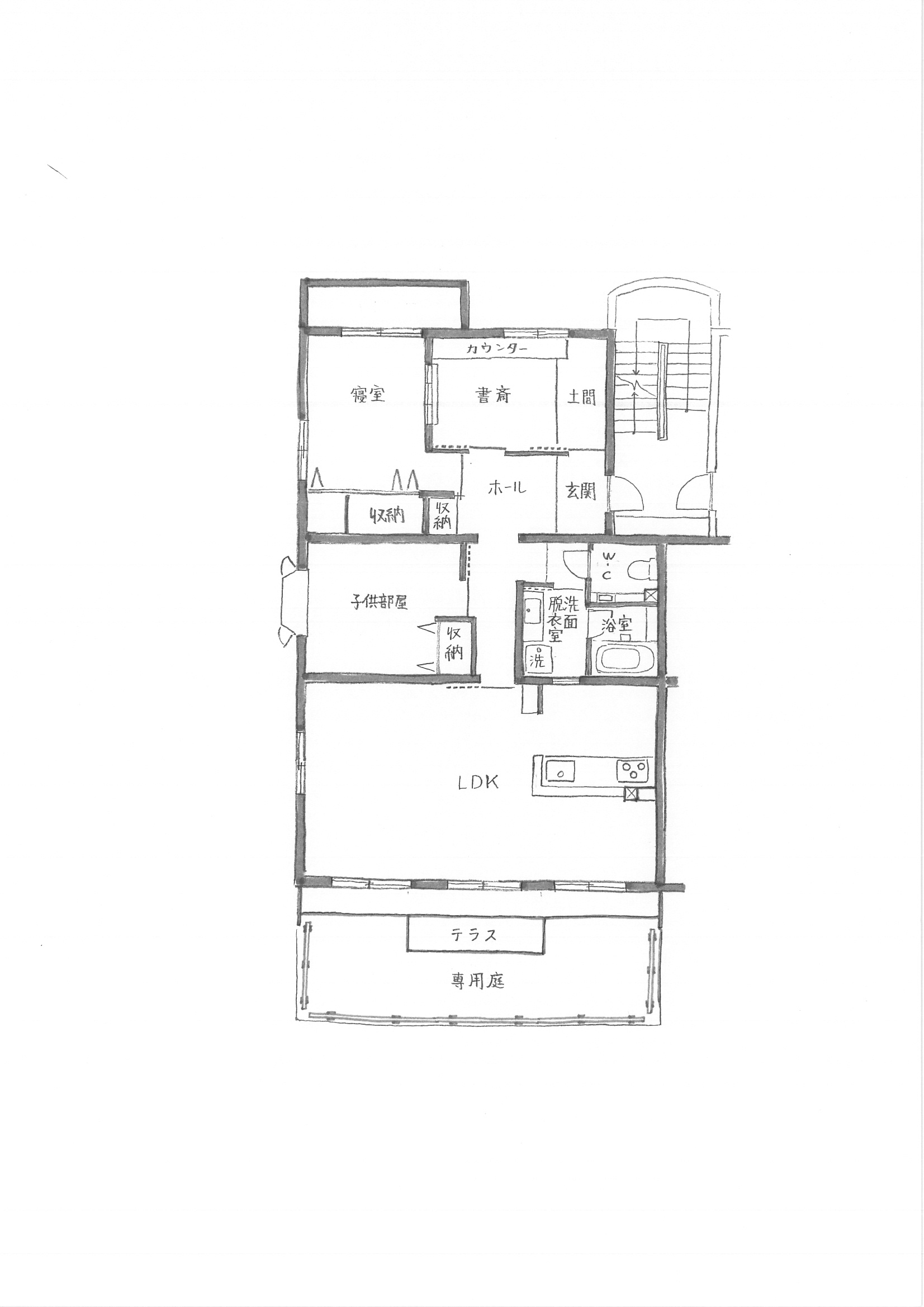
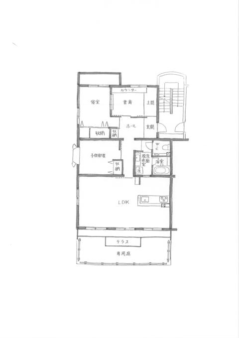
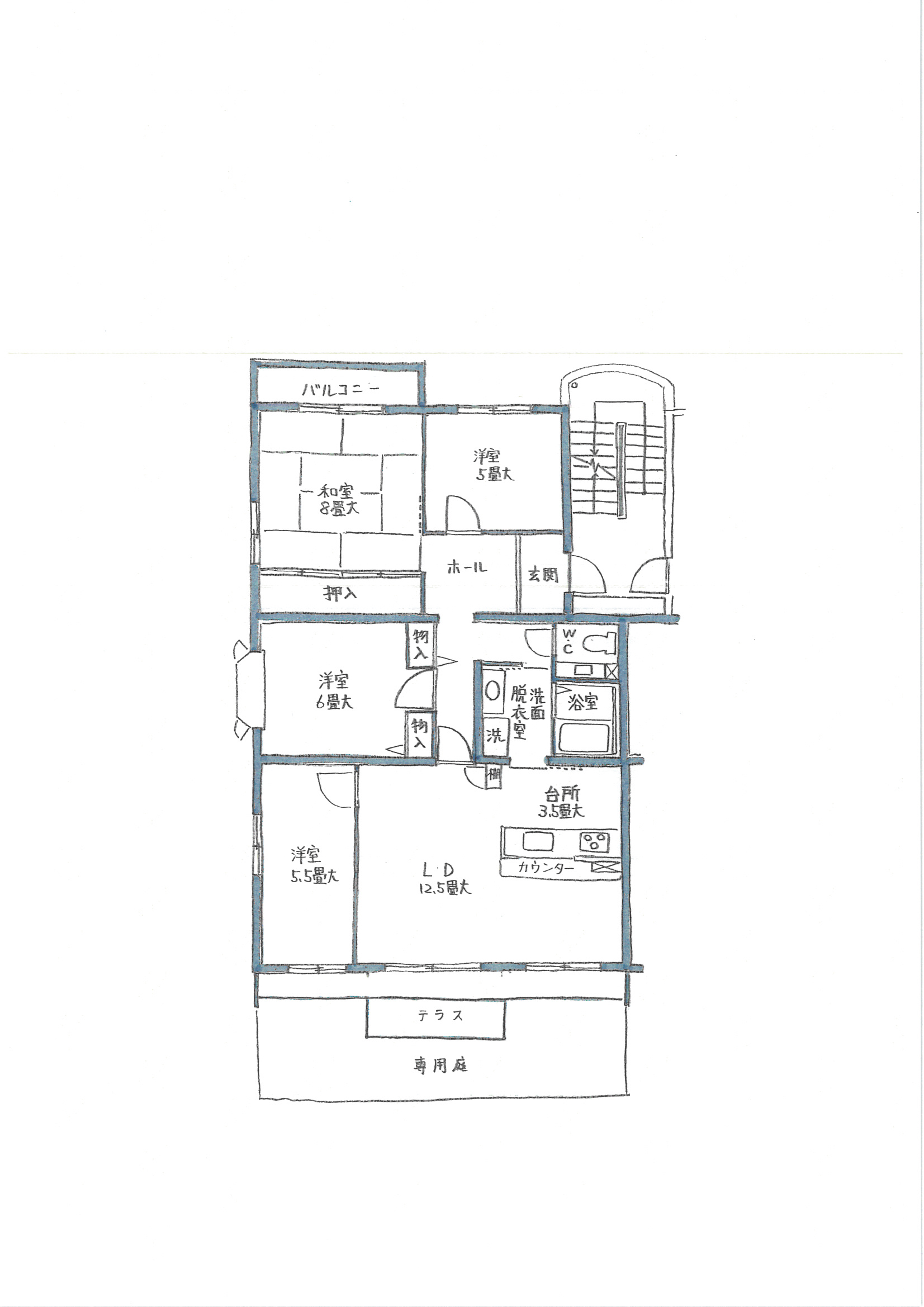
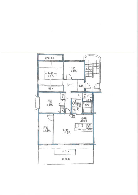
団地フルリノベーション

埼玉県 三郷市 早稲田団地 2015年12月19日

団地の空き家をリノベーションしました。

面積 94.73㎡
築年数 27年
工期 2か月半
費用(税込) 500〜1000万円
建物種別 マンション
  • キッチン
  • 寝室
  • 玄関まわり
  • リビング・居室
  • 自然素材
  • 収納
  • デザインリフォーム
  • 中古リフォーム
  • 趣味を楽しむ

ビフォー・アフター

その他、リフォーム空間

キッチンまわり造作

吊戸とカウンターを造作しました。
吊戸棚にアイアンを使ってカフェのような雰囲気を演出しています。
カウンターには黒板塗装を施したボードをつけました。、おススメの本についてメッセージを書いて、家族でシェアしてみてはいかがでしょうか(^^)

担当者コメント

LIXILリフォームショップトヨダ建設 工事部/意匠思案室 橋戸

こちらの物件は「意匠思案室」という女性だけのチームで手がけました。 テーマは『カフェ』と『本』。 カフェのような趣の中に、本のある暮らしをイメージしてデザインしています。 内覧をご希望の方は、トヨダ建設の橋戸までお気軽にお問い合わせください(*^_^*)

トヨダ建設の施工事例一覧へ

お見積・ご相談・お問い合わせはこちら

お見積・ご相談・お問い合わせはこちら

0120-50-7660