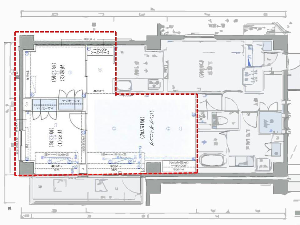
洋室1 くつろぎスペース
洋室2(WICとワークスペースにしたお部屋)に面した壁にあったクローゼットを取り除き、室内窓を設置。その横には新たに収納スペースを設けました(詳細は別写真参照)。1つはFIX窓、もう1つはランマ用窓で開閉が可能です。室内窓やくすみブルーのガラス付の扉からこぼれる温かみのある明かりが、柔らかなグリーンのクロスとともに、部屋を温もりある明るい空間に演出してくれます。眺望が素晴らしいこちらのお部屋。ゆくゆくはゆっくりお茶や読書を楽しみたいそう。素敵です。
洋室1 収納スペース
場所も大きさも新たに、クローゼットを設置。上段3段は可動棚。奥様の趣味であるヨガのマットなどが収納できる奥行を確保いたしました。下段は棚板はなく、床にフロアタイルのヘリンボーン柄を採用。上段は隣の部屋(洋室2)に収納棚を設置するための奥行を残したのに対し、下段は目一杯まで奥行をのばし、3枚折した布団が収納できるようになっています。
洋室2 ウォークインクローゼットとワークスペース
「収納場所が欲しい!」と、思い切ってWICにした洋室2。細かく収納を区切るのではなく、造作した壁とその対面の壁に枕棚を配置し、ハンガーパイプを必要な箇所にのみ取り付けました。長く家に住めば収納したい物や量も変わってきます。シンプルな造りや可動棚などで収納力に幅を持たせるのはおすすめ。また、壁を造作しワークスペースも確保。壁に囲まれてしまうこちらのスペースも、造作壁の上部を吹き抜けにし、更に隣の部屋との間仕切壁に設置した室内窓で光を取り入れることで、暗くなりすぎず程好い明るさをキープしてくれます。抜け感を与えてくれるだけでなく、空気の循環もしてくれるので、収納スペースには嬉しい効果。
洋室2 収納棚とワークスペース
洋室1のクローゼットに面した壁に作った収納。収納するものに合わせて無駄なくスペースを活用できる可動棚です。隣りに見えるヘリンボーン柄のフロアの空間はワークスペース。壁のクロスもほんのり黄色でWICスペースのクロスとは違う色・柄を採用。違う材質や色、柄にすることで別の空間だという区切りにもなり、デザイン的なアクセントとしても素敵なコーディネートになっています。
リビング側からみた洋室1、2のドア
ナチュラルで、おだやかな空気が流れるような感性にやさしく寄りそうデザインで、お部屋を彩る扉。部屋に馴染みながらも、そのお部屋の主役にもなれるドアは、暮らす人にワクワクや、くつろぎを与えてくれます。
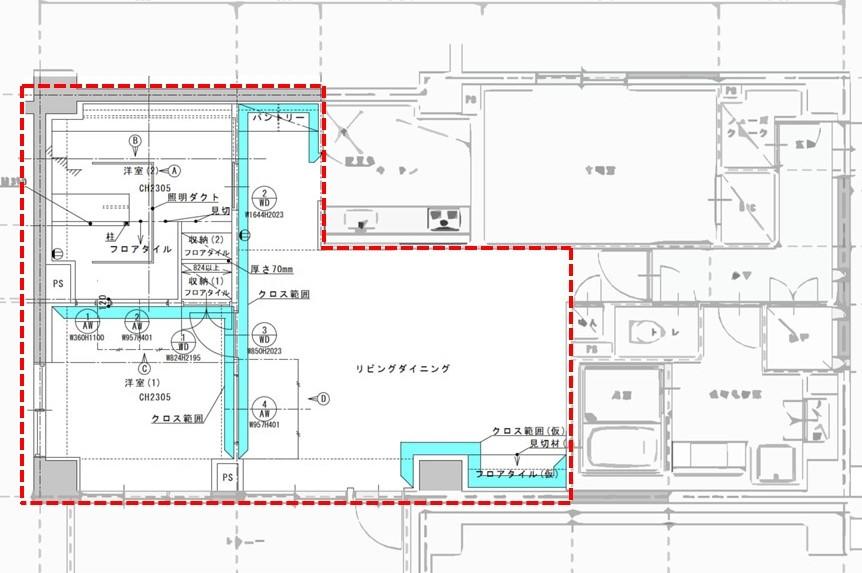
パントリー
キッチンすぐ横のワークスペースだった場所に念願のパントリーも実現!コンセント側の棚板にはコンセント用の穴を開けました。動線的にも使いやすい位置ですね。