LIXILリフォームショップ美都和

お見積・ご相談・お問い合わせはこちら 0120-04-2118

LIXILリフォームショップ美都和

お見積・ご相談・お問い合わせはこちら 0120-04-2118

癒しの空間 自宅の和室を陶板浴に...

茨城県 八千代市 N様邸陶板浴室新設工事 2020年2月25日

自宅に陶板浴を作りました

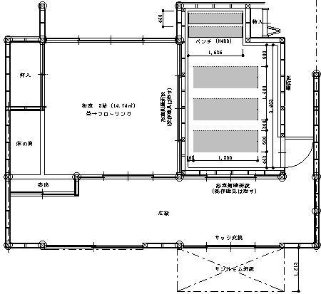
リフォーム部位 和室から陶板浴
費用(税込) 〜100万円
建物種別 戸建て
  • リビング・居室
  • 自然素材
  • 趣味を楽しむ

ビフォー・アフター

その他、リフォーム空間

和室を陶板浴にリフォーム

【施工前】 
和室を陶板浴に

担当者コメント

LIXILリフォームショップ美都和 常務 齋藤 慎一

陶板浴室の新設工事が終了しました。 もともとは和室だった部屋に床に3床とベンチ式の陶板浴を1つ作りました。

施主様コメント

完成後、御施主様は早速、陶板浴へ入っていました。 「気持ちいい!」の一言! 会社を経営されているので、従業員の方にもぜひ入ってもらいたい。 皆さんの癒しの空間になりますように

美都和の施工事例一覧へ

お見積・ご相談・お問い合わせはこちら

お見積・ご相談・お問い合わせはこちら

0120-04-2118