LIXILリフォームショップ山本建業

お見積・ご相談・お問い合わせはこちら 0120-88-0837
LIXILリフォームショップ山本建業
お見積・ご相談・お問い合わせはこちら 0120-88-0837

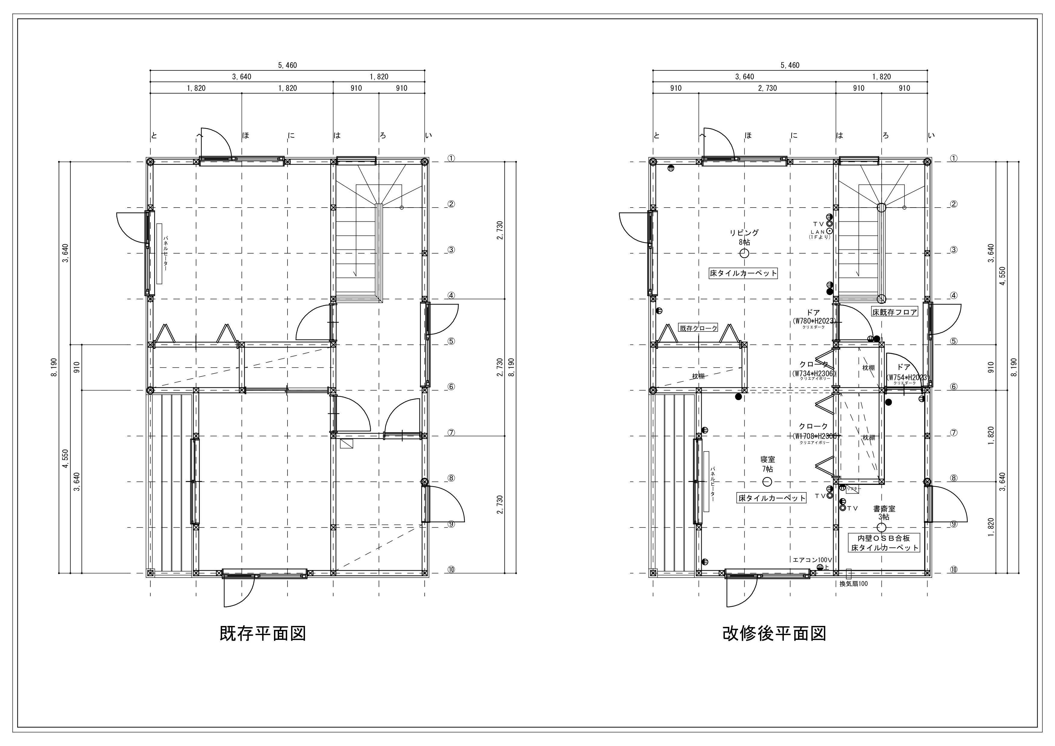
2階改修、水廻りリフォーム

北海道 岩見沢市W様邸 2020年12月24日

息子さんご夫婦の為、2階を改修。
1階部分のキッチンやバスルームもリフォームしました!

工期 約2か月
費用(税込) 300〜500万円
建物種別 戸建て
  • キッチン
  • 浴室
  • バリアフリー
  • デザインリフォーム
  • 家族の変化

ビフォー・アフター

その他、リフォーム空間

2階改修

別々だった部屋をつなげ、
リビングとベッドルームに!

担当者コメント

LIXILリフォームショップ山本建業 営業係長 大串 康夫

ご家族の変化に応じ、より快適に過ごせますよう考え施工いたしました。

山本建業の施工事例一覧へ

お見積・ご相談・お問い合わせはこちら

お見積・ご相談・お問い合わせはこちら

0120-88-0837