LIXILリフォームショップ竹内建設

お見積・ご相談・お問い合わせはこちら 0120-70-1154

LIXILリフォームショップ竹内建設

お見積・ご相談・お問い合わせはこちら 0120-70-1154

11/23 月寒東リノベマンション モデルルーム公開!

こんにちは!
LIXILリフォームショップ 竹内建設です。

今週の木曜日は嬉しい祝日!!
もうご予定はお決まりでしょうか?

23日午後より、リノベーション済みマンションのオープンルームを開催いたします!

KUN_3074.jpg

KUN_3069.jpg

KUN_3081.jpg

KUN_3091.jpg

KUN_3097.jpg

KUN_3061.jpg

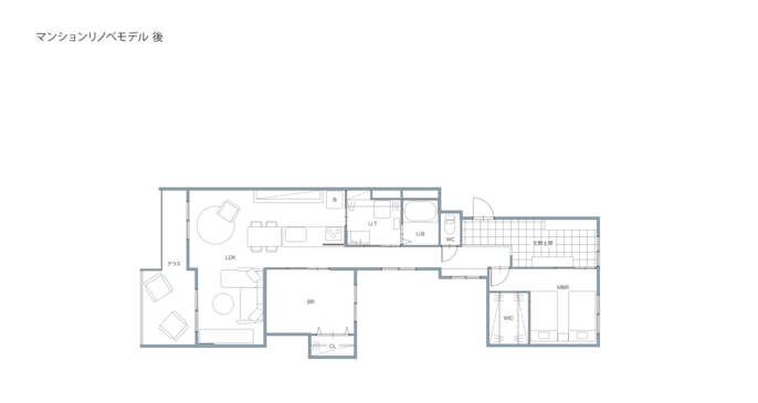
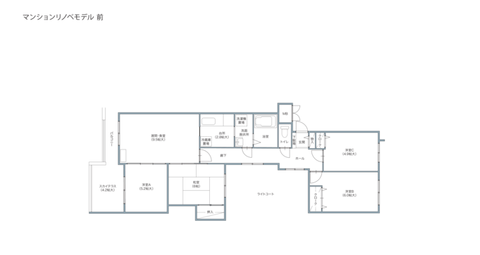
築31年のマンションがフルリノベーションによって生まれ変わりました!

2310_竹内建設_図面_マンションリノベモデル-01.png

2310_竹内建設_図面_マンションリノベモデル-02.png

ご来場は予約制とさせていただきます。

以下のご来場予約フォームよりお申し込みをお願い致します。

ご来場予約はコチラから

一覧へ戻る

お見積・ご相談・お問い合わせはこちら

お見積・ご相談・お問い合わせはこちら

0120-70-1154