北海道 2023年12月19日
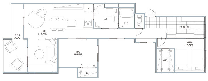
定額マンションリノベーション商品「tolv(トルヴ)」のモデルルームが完成いたしました。「tolv(トルヴ)」とはスウェーデン語で[12]という意味で、その数字は「もっとも美しく、もっとも便利とされる数字」。私達が目指している、「永く住み継がれる、快適な住まい」の実現を表しています。
| リフォーム部位 | リビングダイニング、キッチン、風呂、トイレ、全居室、フローリング、壁紙、洗面化粧台、窓、室内ドア |
|---|---|
| 面積 | 71.93㎡(21.75坪) |
| 築年数 | 築31年(1992年築) |
| 工期 | 45日 |
| 費用(税込) | 500〜1000万円 |
| 建物種別 | マンション |











担当者コメント
LIXILリフォームショップ竹内建設 LRS事業責任者 松山賢司
定額制マンションリノベーションです。マンションの大きさにそれぞれの定額(税込)を当てはめて頂くと予算が出ます。詳しくはお問い合わせください。モデルでご説明すると尚ご理解頂けると思います。 宜しくお願い致します。