事例紹介
リフォーム事例を探す
リフォーム場所から検索
キッチン
ダイニング
リビング・居室
寝室
浴室
洗面化粧室
トイレ
玄関まわり
門まわり
屋根・外壁
ベランダ・バルコニー
ガーデンスペース
カースペース
住まいのこだわり
バリアフリー
耐震補強
オール電化
省エネ
自然素材
収納
デザインリフォーム
中古リフォーム
古民家再生
家族の変化
趣味を楽しむ
ペットと暮らす
お客さまの声
3Dシミュレーション
事例紹介
LIXILリフォームショップを探す
LIXILリフォームショップについて
LIXILリフォームショップについて
サービス向上・品質改善の取り組み
お客さま満足度アンケート
ここちいい暮らしをつくる、価値・性能向上リノベーション
リフォームコンシェルジュ®
ライフスタイルコンパス
リフォームアクセル
中古物件探しから性能向上リフォームをワンストップ
LIXILリフォームショップのコンセプト
リフォームお役立ち情報
おすすめ情報
加盟店募集
住宅リフォーム・リノベーション専門のLIXILリフォームショップ
LIXILリフォームショップを探す
岐阜県
LIXILリフォームショップ 岡島ハウス産業
施工事例
垂井町O様邸 水廻り工事
LIXILリフォームショップ
岡島ハウス産業
お見積・ご相談・お問い合わせはこちら
0120-89-8943
無料でご相談
この会社のウェブサイトはこちら
LIXILリフォームショップ
岡島ハウス産業
お見積・ご相談・お問い合わせはこちら
0120-89-8943
無料でご相談
この会社のウェブサイトはこちら
店舗ホーム
スタッフ紹介
施工事例
イベント&
キャンペーン
スタッフブログ
おすすめ情報
ごあいさつ
会社案内
垂井町O様邸 水廻り工事
岐阜県 不破郡垂井町O様邸 2017年8月21日
~ 増築して使いやすい水廻り空間に ~
費用(税込)
500〜1000万円
建物種別
戸建て
ビフォー・アフター
その他、リフォーム空間
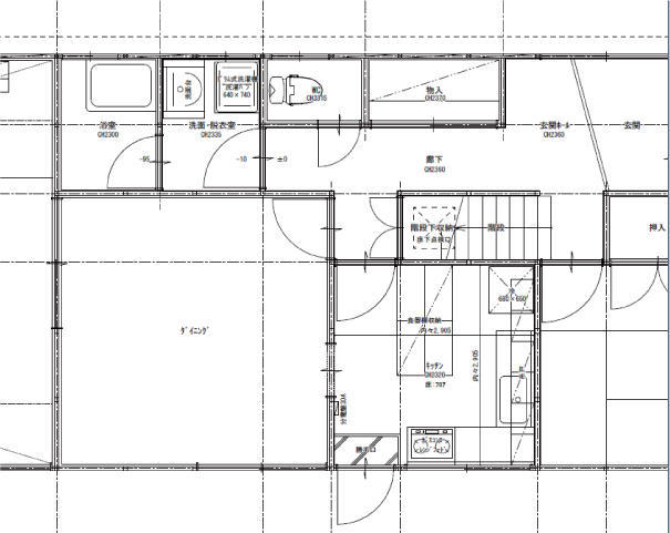
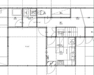
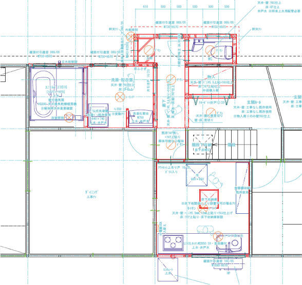
【BEFORE】
以前のお住まいは、浴室もキッチンも全てが狭く、使い勝手が悪いのがお悩みでした。
【AFTER】
西面を少し増築して、それぞれの空間や収納を広く確保しました。ドアではなく引戸を取り入れることで、部屋から部屋への出入りもしやすくなりました。
【BEFORE】
以前の洗面化粧台には日用品があふれている状態でした。
【AFTER】
三面鏡を開けるとそこは収納になっていて、小物類をすっきり片付けておけます。壁付けの水栓はカビが発生しにくく、お掃除が楽です。
岡島ハウス産業の施工事例一覧へ
お見積・ご相談・お問い合わせはこちら
お見積・ご相談・お問い合わせはこちら
0120-89-8943
無料でご相談