事例紹介
リフォーム事例を探す
リフォーム場所から検索
キッチン
ダイニング
リビング・居室
寝室
浴室
洗面化粧室
トイレ
玄関まわり
門まわり
屋根・外壁
ベランダ・バルコニー
ガーデンスペース
カースペース
住まいのこだわり
バリアフリー
耐震補強
オール電化
省エネ
自然素材
収納
デザインリフォーム
中古リフォーム
古民家再生
家族の変化
趣味を楽しむ
ペットと暮らす
お客さまの声
3Dシミュレーション
事例紹介
LIXILリフォームショップを探す
LIXILリフォームショップについて
LIXILリフォームショップについて
サービス向上・品質改善の取り組み
お客さま満足度アンケート
ここちいい暮らしをつくる、価値・性能向上リノベーション
リフォームコンシェルジュ®
ライフスタイルコンパス
リフォームアクセル
中古物件探しから性能向上リフォームをワンストップ
LIXILリフォームショップのコンセプト
リフォームお役立ち情報
おすすめ情報
加盟店募集
住宅リフォーム・リノベーション専門のLIXILリフォームショップ
LIXILリフォームショップを探す
岐阜県
LIXILリフォームショップ 岡島ハウス産業
施工事例
近江八幡市N様邸 外構工事
LIXILリフォームショップ
岡島ハウス産業
お見積・ご相談・お問い合わせはこちら
0120-89-8943
無料でご相談
この会社のウェブサイトはこちら
LIXILリフォームショップ
岡島ハウス産業
お見積・ご相談・お問い合わせはこちら
0120-89-8943
無料でご相談
この会社のウェブサイトはこちら
店舗ホーム
スタッフ紹介
施工事例
イベント&
キャンペーン
スタッフブログ
おすすめ情報
ごあいさつ
会社案内
近江八幡市N様邸 外構工事
滋賀県 近江八幡市N様邸 2017年3月23日
費用(税込)
〜100万円
建物種別
戸建て
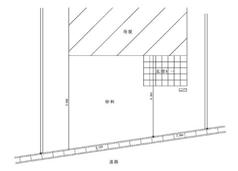
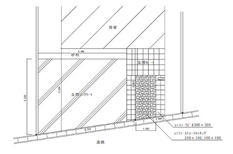
ビフォー・アフター
その他、リフォーム空間
【AFTER】
砂利だったお庭を、オシャレに変身させました。 玄関ポーチにはタイルを張り、駐車スペースには土間コンクリートを打ちました。
岡島ハウス産業の施工事例一覧へ
お見積・ご相談・お問い合わせはこちら
お見積・ご相談・お問い合わせはこちら
0120-89-8943
無料でご相談