LIXILリフォームショップライファ岡崎美合

お見積・ご相談・お問い合わせはこちら 0120-52-2026

LIXILリフォームショップライファ岡崎美合

お見積・ご相談・お問い合わせはこちら 0120-52-2026

岡崎市 S様邸 リノベーション(全面改修) 

愛知県 鈴木様邸 2019年7月13日

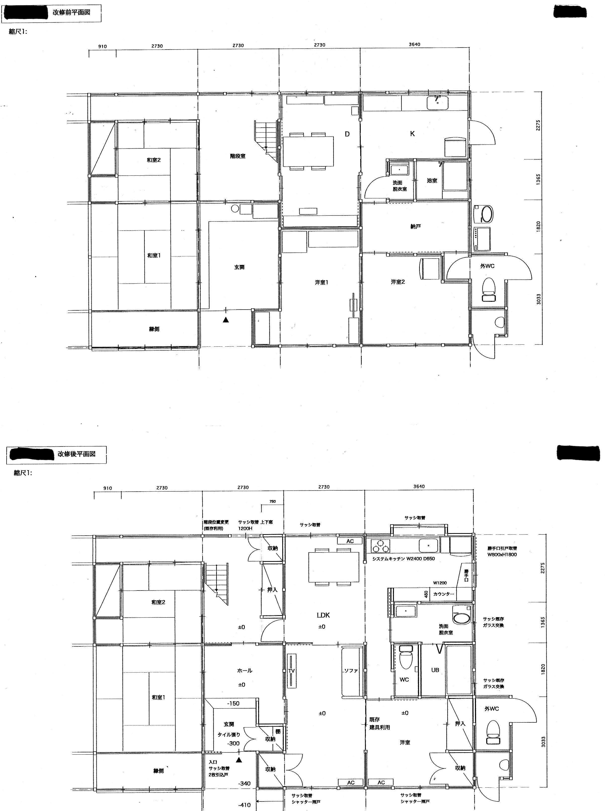
1階の全面リノベーションいたしました。とても広い玄関でしたが縮小し、収納を設けました。また、玄関に入ってすぐの洋室には間仕切り壁を造作しプライベートな空間が外から見えないようにしています。玄関壁には後付けで手すりを設置できるように下地を入れています。

工期 3か月
費用(税込) 1000万円〜
建物種別 戸建て
  • キッチン
  • リビング・居室
  • 浴室
  • トイレ
  • 玄関まわり

ビフォー・アフター

その他、リフォーム空間

リフォーム図面

ライファ岡崎美合の施工事例一覧へ

お見積・ご相談・お問い合わせはこちら

お見積・ご相談・お問い合わせはこちら

0120-52-2026