LIXILリフォームショップライファ駒形通

お見積・ご相談・お問い合わせはこちら 0120-73-6138
LIXILリフォームショップライファ駒形通
お見積・ご相談・お問い合わせはこちら 0120-73-6138

デザイナーズリフォーム オリジナル家具製作

こんにちわ。今回は少し前になりますが、マンションリフォームをしたときにオリジナル家具を作成したお話しを少し。

IMG_2748.JPG全て計算されたスペースにぴったりはまるように製作しました。

マンション全面リフォームでした。詳細な打ち合わせを重ねさせていただきかなりのこだわりをお持ちになられている事がよくわかりました。

もちろんこちらもその心意気に全面的に答えます。

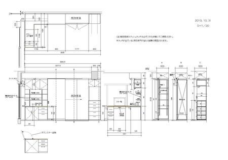
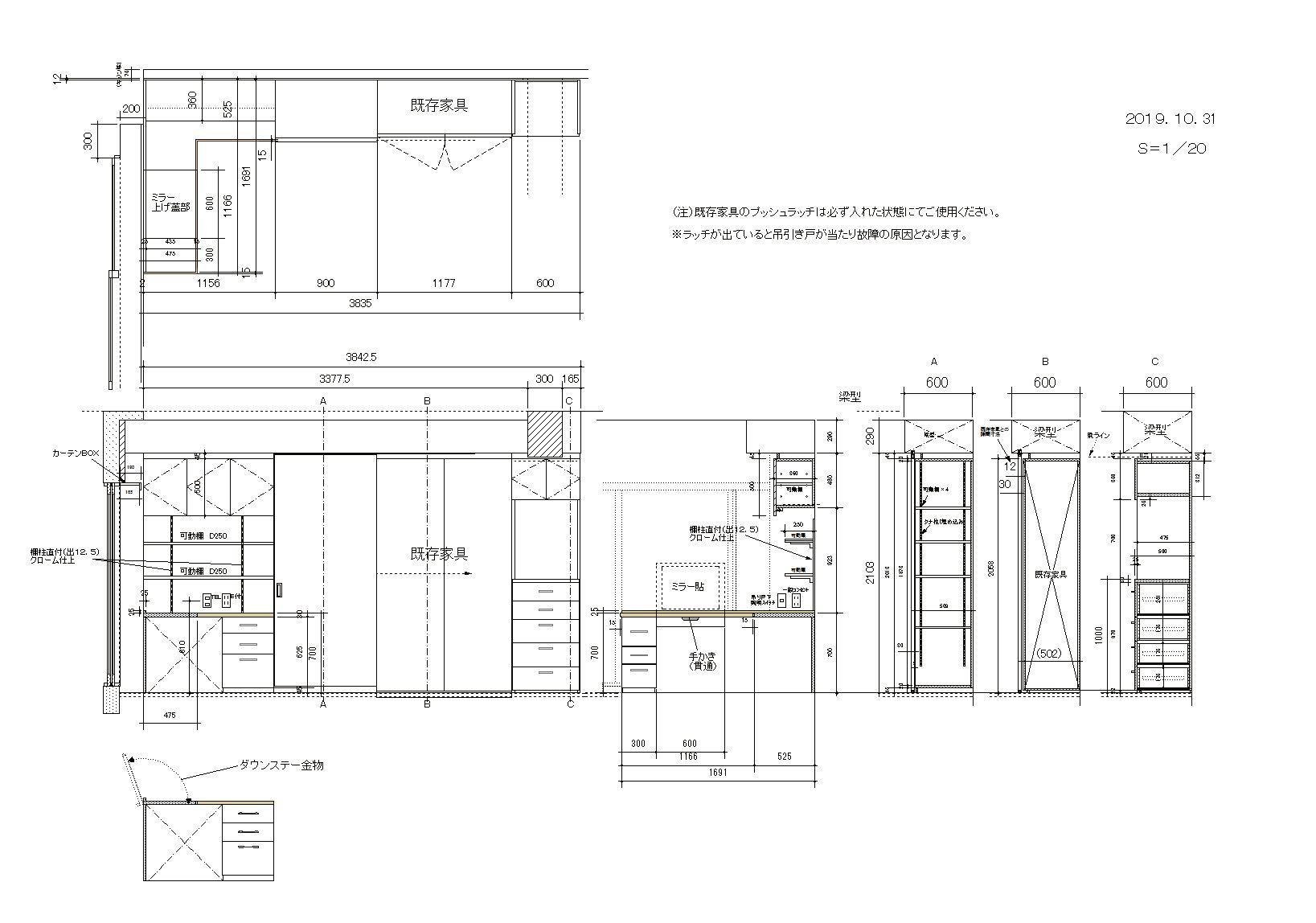
壁面家具図10.23.JPG壁面家具テーブル.JPG

家具詳細図です。引き出しの深さまで打ち合わせしました。

IMG_2760.JPGIMG_2765.JPG

扉も製作物です。床から天井まで、生活シーンによって可動させて使用します。

私どもは部屋全体をリフォームしますのでその中で部屋の寸法にぴったりの壁、オリジナル家具を製作できます。

お値段に見合う物ができる事請け合いです。お客様にもとても喜んでいただきました。

自分だけの最高の空間を是非。 お待ちしております。

IMG_2742.JPGIMG_2746.JPG

IMG_2763.JPGIMG_2777.JPG

一覧へ戻る

お見積・ご相談・お問い合わせはこちら

お見積・ご相談・お問い合わせはこちら

0120-73-6138