LIXILリフォームショップライファ駒形通

お見積・ご相談・お問い合わせはこちら 0120-73-6138
LIXILリフォームショップライファ駒形通
お見積・ご相談・お問い合わせはこちら 0120-73-6138

大規模リノベーションの実例 その1(着工前まで)

こんにちは。今回は施工事例にのせてあります、大規模リノベーションの工事内容を

実際の写真と共にお話しさせていただきます。

実際どういう感じで工事が進んでいくのか目で見る機会はないと思いますので

今後、リノベーションをお考えの方、弊社がどんな施工をするのか興味のある方

是非ご参考にしてください。

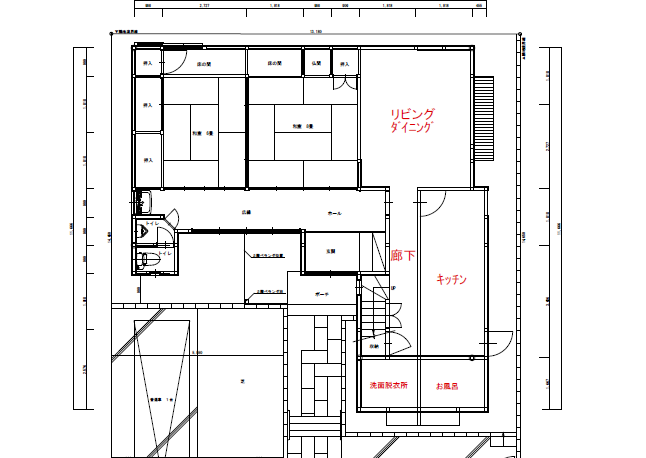
では 平面計画です。

既存平面図既存平面図.png

今回は リビングダイニング、キッチン、お風呂、洗面脱衣所のレイアウトの

大幅変更とそれに伴う外部開口部(窓)の変更、建物全体の耐震補強、玄関扉の交換、ベランダを大きくする、老朽化したバルコニーの撤去と、それに変わるカーポート設置、ガスからオール電化(エコキュート電気温水器)への交換など、工事内容は多岐にわたります。

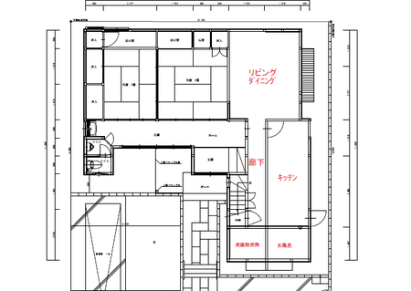
最新平面図 -1F色付け.pngリノベーションプランです。

立面図 8.10.jpg立面図です。外部開口(窓)やベランダの変更確認に使用しました。

イメージ図などもご用意しました。

パース提出用.jpg

お風呂、洗面脱衣室は南側にあった物を全く逆の北側に、そしていままでクローズ空間の中にあったキッチンを

オープンキッチンとしリビング・ダイニングと一つとすることで広々とした空間を実現します。

では施工前の状況写真です。事前(正面).JPG

もう一面事前(東立面).jpg

施工事例にのせてあります大規模リノベーションの完成写真と比べていただければかなり

開口部(窓)が変わった事がお分かりになると思います。

次回は解体工事からお話しさせていただきます。

一覧へ戻る

お見積・ご相談・お問い合わせはこちら

お見積・ご相談・お問い合わせはこちら

0120-73-6138