福井県 2020年9月15日
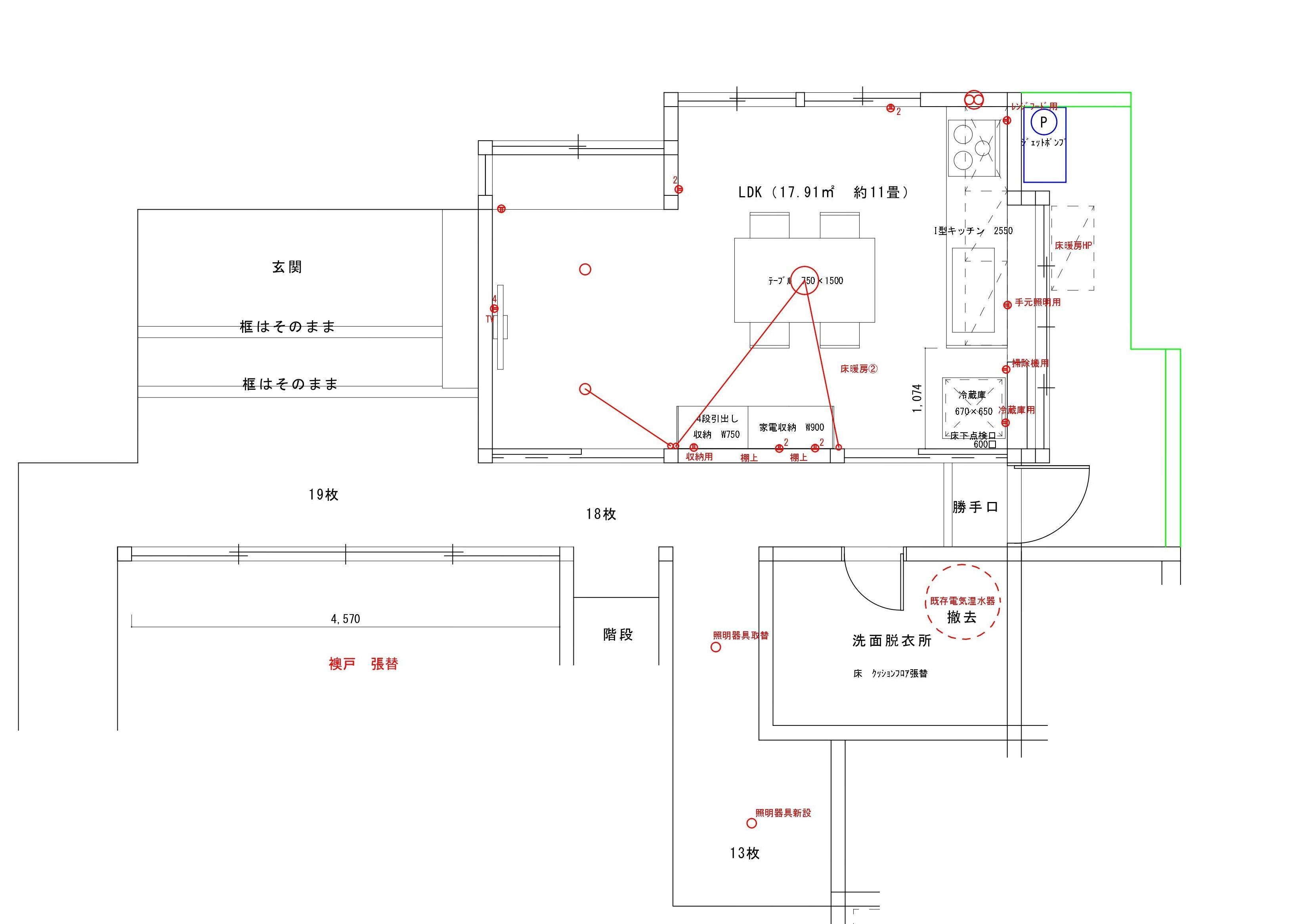
リフォーム相談会にて、①玄関・縁側・廊下の床の張り直し ②LDK改修・床暖房の設置 ③外壁の部分塗装 のご相談をいただきました。趣のある和風な玄関でしたが、明るい雰囲気にしてほしいとのことで和洋折衷のイメージで進めさせて頂きました。LDKはご夫婦2人が過ごしやすいように、コンパクトにまとまった空間になりました。 施工費:650万~750万円 お引渡し:2020年4月
| リフォーム部位 | 廊下、LDK |
|---|---|
| 工期 | 約2か月 |
| 費用(税込) | 500〜1000万円 |
| 建物種別 | 戸建て |



担当者コメント
LIXILリフォームショップ山二工業 店長 山田 育郎
全体的に改修させて頂きました。キッチンが奥にあるため、お客様の生活にそれほど支障をきたさずに工事が進められました。既存との納まりなどは大工さんと相談しながら、良い仕上がりになったと思います。お客様、工事の関係者の皆様に感謝です。