LIXILリフォームショップ山二工業

お見積・ご相談・お問い合わせはこちら 0120-655-231

LIXILリフォームショップ山二工業

お見積・ご相談・お問い合わせはこちら 0120-655-231

プライバシー確保!大人になる兄妹の部屋づくり

福井県 2018年8月 1日

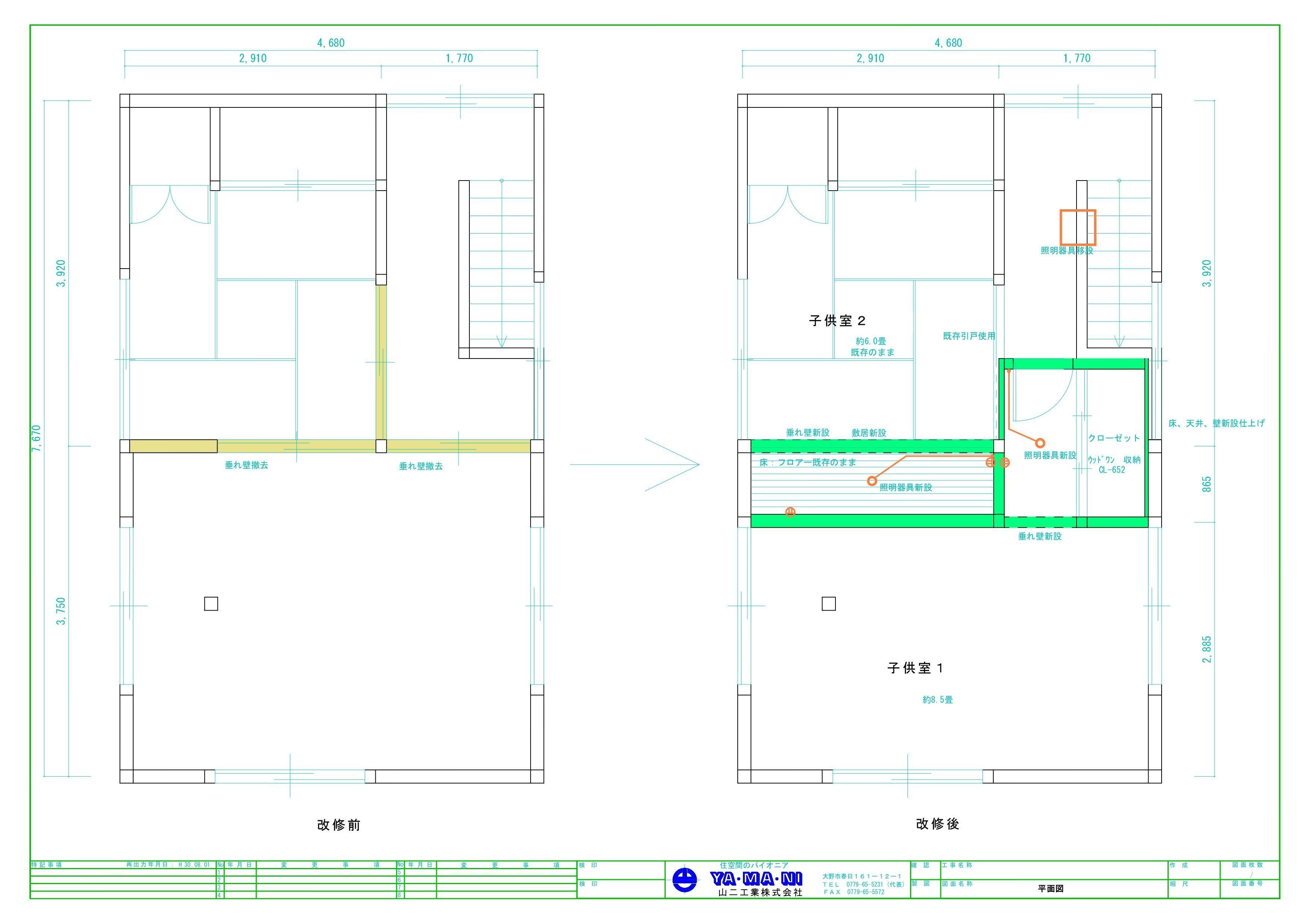
息子さんと娘さんが大きくなり、「それぞれの部屋を用意してあげたい」という思いからご相談をいただきました。収納スペースも設けました。 施工費:70万~100万円

リフォーム部位 2階部屋
費用(税込) 〜100万円
建物種別 戸建て
  • リビング・居室

ビフォー・アフター

その他、リフォーム空間

図面

2つの部屋に区切って、プライベート空間をしっかり確保しました。
洋室側(子供室1)にはクローゼットを新設しました。

担当者コメント

LIXILリフォームショップ山二工業 店長 山田 育郎

まったく同じような2つの部屋にできない設計になってしまったのですが、予算内に収められるようにしました。

山二工業の施工事例一覧へ

お見積・ご相談・お問い合わせはこちら

お見積・ご相談・お問い合わせはこちら

0120-655-231