LIXILリフォームショップ山二工業

お見積・ご相談・お問い合わせはこちら 0120-655-231

LIXILリフォームショップ山二工業

お見積・ご相談・お問い合わせはこちら 0120-655-231

使っていない空間を有効活用!浴室拡張リフォーム

福井県 I様邸 2018年7月10日

以前は在来工法(タイル)の浴室だったため、寒さが気になっていたそうです。「そろそろ替えたいな」と考えていた時期に、弊社の折込チラシを見てご相談に来てくださいました。元の浴室に合うサイズのユニットバスがなかったため、浴室を広げることになり①間取り変更 と②増築 の2パターンを提案させて頂き、①間取り変更にて施工いたしました。 施工費:160万~190万円

リフォーム部位 浴室
工期 約2週間
費用(税込) 100〜300万円
建物種別 戸建て
  • 浴室

ビフォー・アフター

その他、リフォーム空間

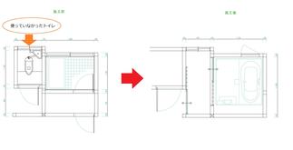
図面(浴室拡張)

使っていないトイレ空間を取り壊し、脱衣所を移動させました。
増築ではなく間取りを変更することで費用を抑えて浴室を広げられました。

担当者コメント

LIXILリフォームショップ山二工業 営業 山川 雅史

お客様の思いを残して工事が出来ました。増築するより使用していないトイレを解体して、浴室を広げられたことに喜んで頂けたので良かったです。最終的にお客様の笑顔が何よりもうれしいです。

山二工業の施工事例一覧へ

お見積・ご相談・お問い合わせはこちら

お見積・ご相談・お問い合わせはこちら

0120-655-231