事例紹介
リフォーム事例を探す
リフォーム場所から検索
キッチン
ダイニング
リビング・居室
寝室
浴室
洗面化粧室
トイレ
玄関まわり
門まわり
屋根・外壁
ベランダ・バルコニー
ガーデンスペース
カースペース
住まいのこだわり
バリアフリー
耐震補強
オール電化
省エネ
自然素材
収納
デザインリフォーム
中古リフォーム
古民家再生
家族の変化
趣味を楽しむ
ペットと暮らす
お客さまの声
3Dシミュレーション
事例紹介
LIXILリフォームショップを探す
LIXILリフォームショップについて
LIXILリフォームショップについて
サービス向上・品質改善の取り組み
お客さま満足度アンケート
ここちいい暮らしをつくる、価値・性能向上リノベーション
リフォームコンシェルジュ®
ライフスタイルコンパス
リフォームアクセル
中古物件探しから性能向上リフォームをワンストップ
LIXILリフォームショップのコンセプト
リフォームお役立ち情報
おすすめ情報
加盟店募集
住宅リフォーム・リノベーション専門のLIXILリフォームショップ
LIXILリフォームショップを探す
福井県
LIXILリフォームショップ 山二工業
施工事例
M様邸浴室改修工事
LIXILリフォームショップ
山二工業
お見積・ご相談・お問い合わせはこちら
0120-655-231
無料でご相談
この会社のウェブサイトはこちら
LIXILリフォームショップ
山二工業
お見積・ご相談・お問い合わせはこちら
0120-655-231
無料でご相談
この会社のウェブサイトはこちら
店舗ホーム
スタッフ紹介
施工事例
イベント&
キャンペーン
スタッフブログ
おすすめ情報
ごあいさつ
会社案内
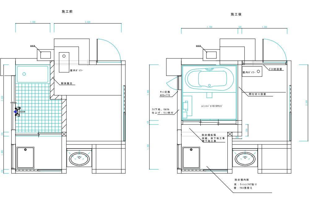
M様邸浴室改修工事
福井県 M様邸 2017年7月10日
春のイベントで相談を頂きました。施工費150万~250万円
工期
14日
費用(税込)
100〜300万円
建物種別
戸建て
ビフォー・アフター
その他、リフォーム空間
図面
浴室の形を整え、以前より少しですが、脱衣室も大きく取りました。
アクリアバス
ステップに腰を掛けて半身浴や、お子様と向かい合って入れます。
アクリアバス
洗い場からの浴槽にかけて手すりになっているので体を支えながら浴槽に浸かれます。
脱衣室
完成
山二工業の施工事例一覧へ
お見積・ご相談・お問い合わせはこちら
お見積・ご相談・お問い合わせはこちら
0120-655-231
無料でご相談